10/10
Paylaş
Resmi Orjinal Boyutunda Göster
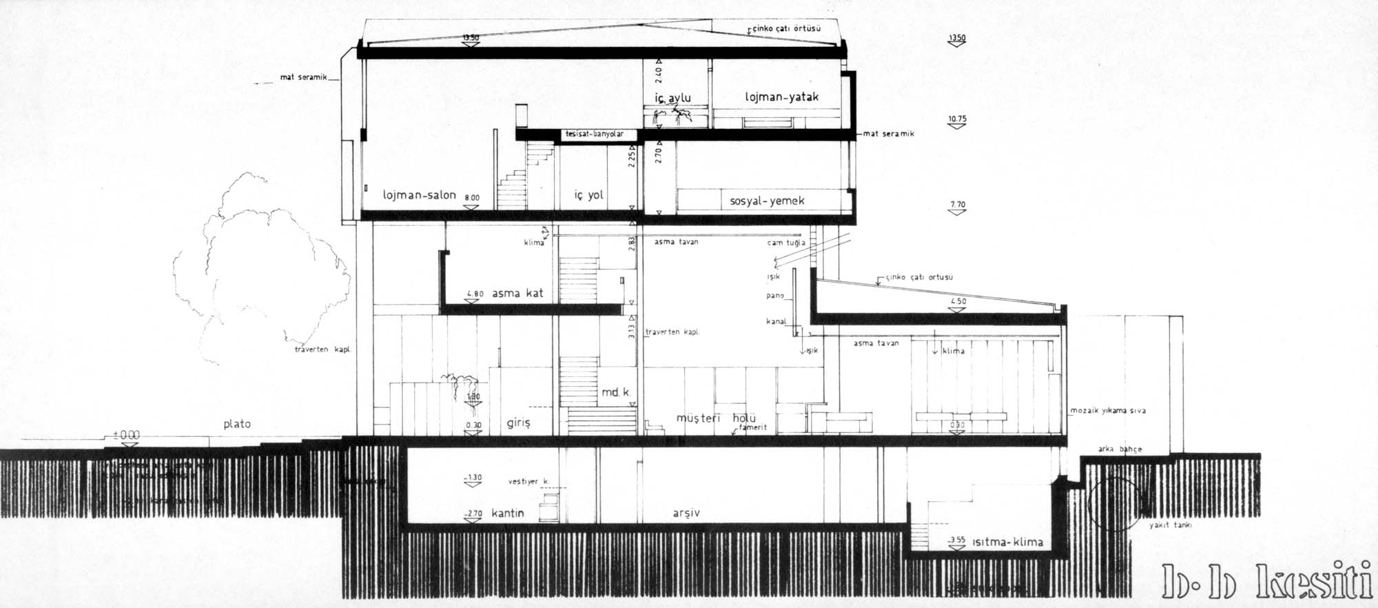
Türkiye Cumhuriyeti Merkez Bankası Konya Şubesi
Proje Yeri: Konya, Karatay
Proje Ofisi: Erkal Mimarlık
Proje Tipi: Diğer Kamu Yapıları
Proje Tipi Grubu: Kamu
Tasarım Ekibi: Filiz Erkal, Coşkun Erkal
İşveren: Türkiye Cumhuriyet Merkez Bankası (TCMB)
Ana Yüklenici: Ön-Yapı, Nejat Önal
Statik Projesi: Hami Gürün
Mekanik Projesi: Celal Okutan, Okutan Mühendislik
Elektrik Projesi: Nazmi Musal
Tesisat Projesi: Celal Okutan, Okutan Mühendislik
Şantiye Yöneticisi: Fahri Aydağ
Proje Başlangıç Yılı: 1970
Proje Bitiş Yılı: 1971
İnşaat Başlangıç Yılı: 1971
İnşaat Bitiş Yılı: 1974
Arsa Alanı: 3,000 m2
Toplam İnşaat Alanı: 3,500 m2