Plan 01
10/11
Paylaş
Resmi Orjinal Boyutunda Göster
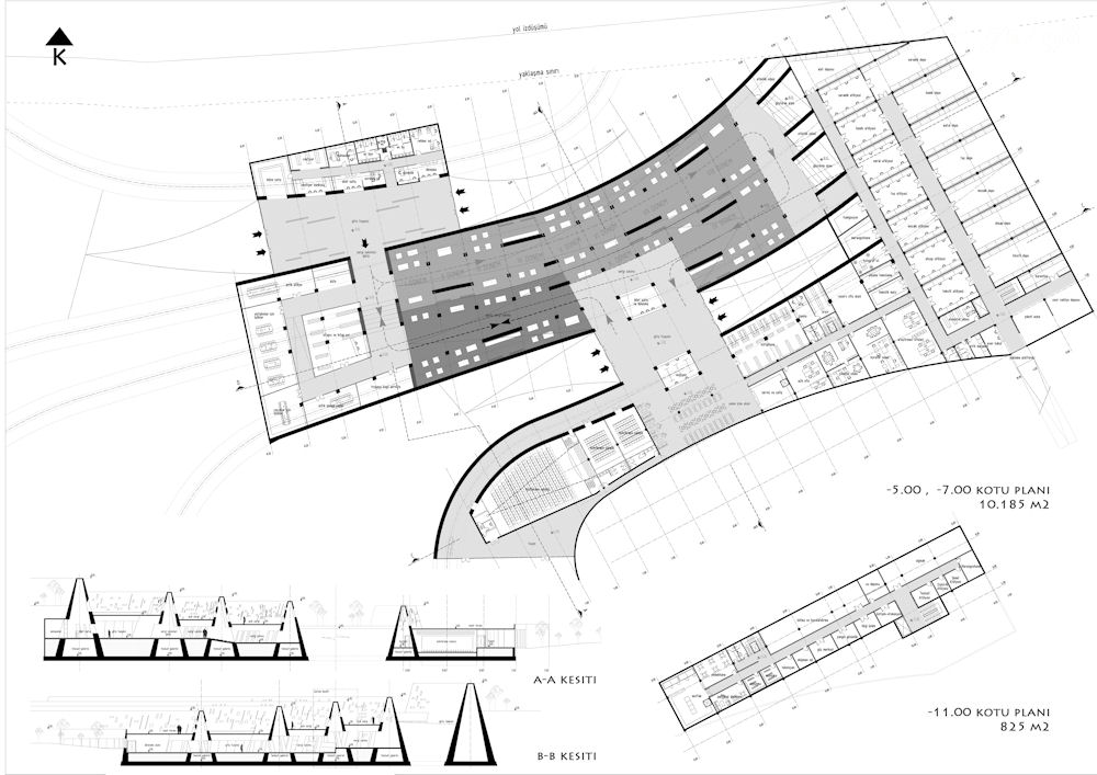
Troya Müzesi Serbest Katılımlı, Tek Aşamalı, Ulusal Mimari Proje Yarışması, 3. Ödül
Proje Yeri: Çanakkale
Proje Ofisi: İkikerebir
Proje Tipi: Müze
Proje Tipi Grubu: 3. Ödül
Tasarım Ekibi: Kutlu İnanç Bal, Hakan Evkaya, Cengiz Gündemir
Yardımcı: Mehmet Çıkrık, Ahmet Zahit Elmas, İbrahim Kekevi, Şemsettin Derya, Mehmet Yılmaz