11/12
Paylaş
Resmi Orjinal Boyutunda Göster
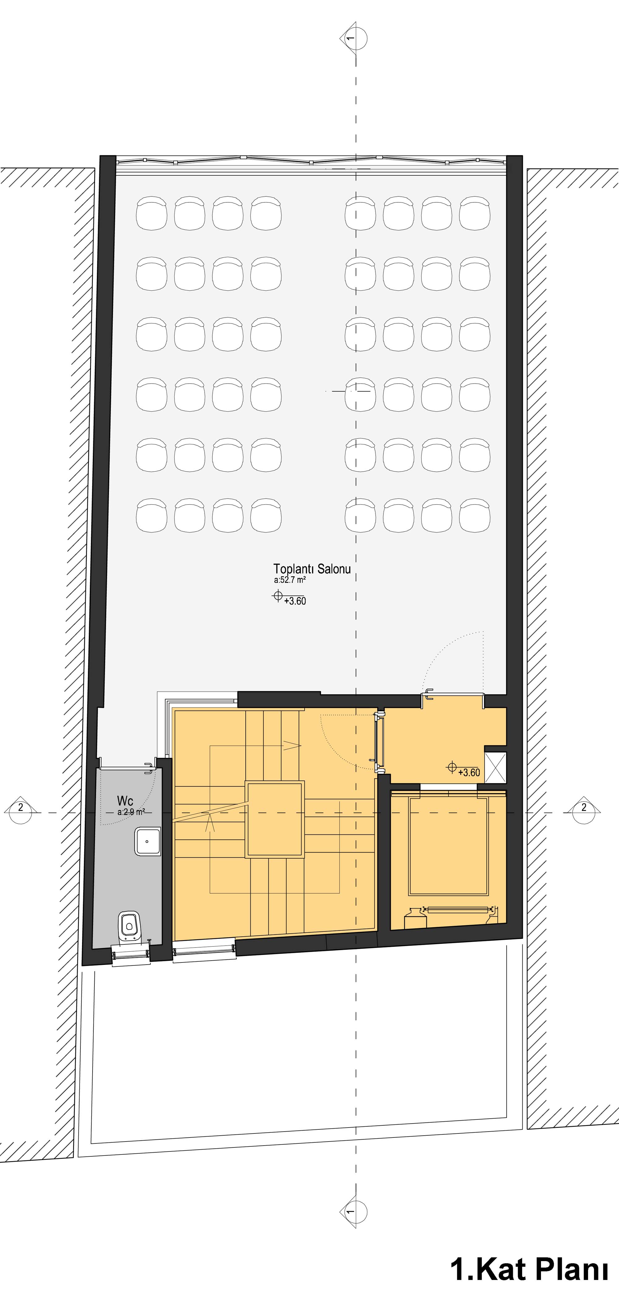
İzmir Jeoloji Mühendisleri Odası Binası
Proje Yeri: İzmir, Alsancak
Proje Ofisi: M artı D Mimarlık
Proje Tipi: Ofis
Proje Tipi Grubu: Kamu
Tasarım Ekibi: Metin Kılıç, Dürrin Süer
İşveren: Jeoloji Mühendisleri Odası İzmir Şubesi
Yardımcı: Utkan Emek Seçgin, Ali Can Helvacıoğlu, Nur Kaplan
Ana Yüklenici: KVK İnşaat
Statik Projesi: Cemal Coşak, Mustafa Şahin
Mekanik Projesi: Ekrem Evren
Elektrik Projesi: Namık Onmuş
Fotoğraf: Zeren + Mehmet Yasa Photography
Proje Başlangıç Yılı: 2013
Proje Bitiş Yılı: 2015
İnşaat Başlangıç Yılı: 2016
İnşaat Bitiş Yılı: 2017
Arsa Alanı: 106 m²
Toplam İnşaat Alanı: 428 m²