13/16
Paylaş
Resmi Orjinal Boyutunda Göster
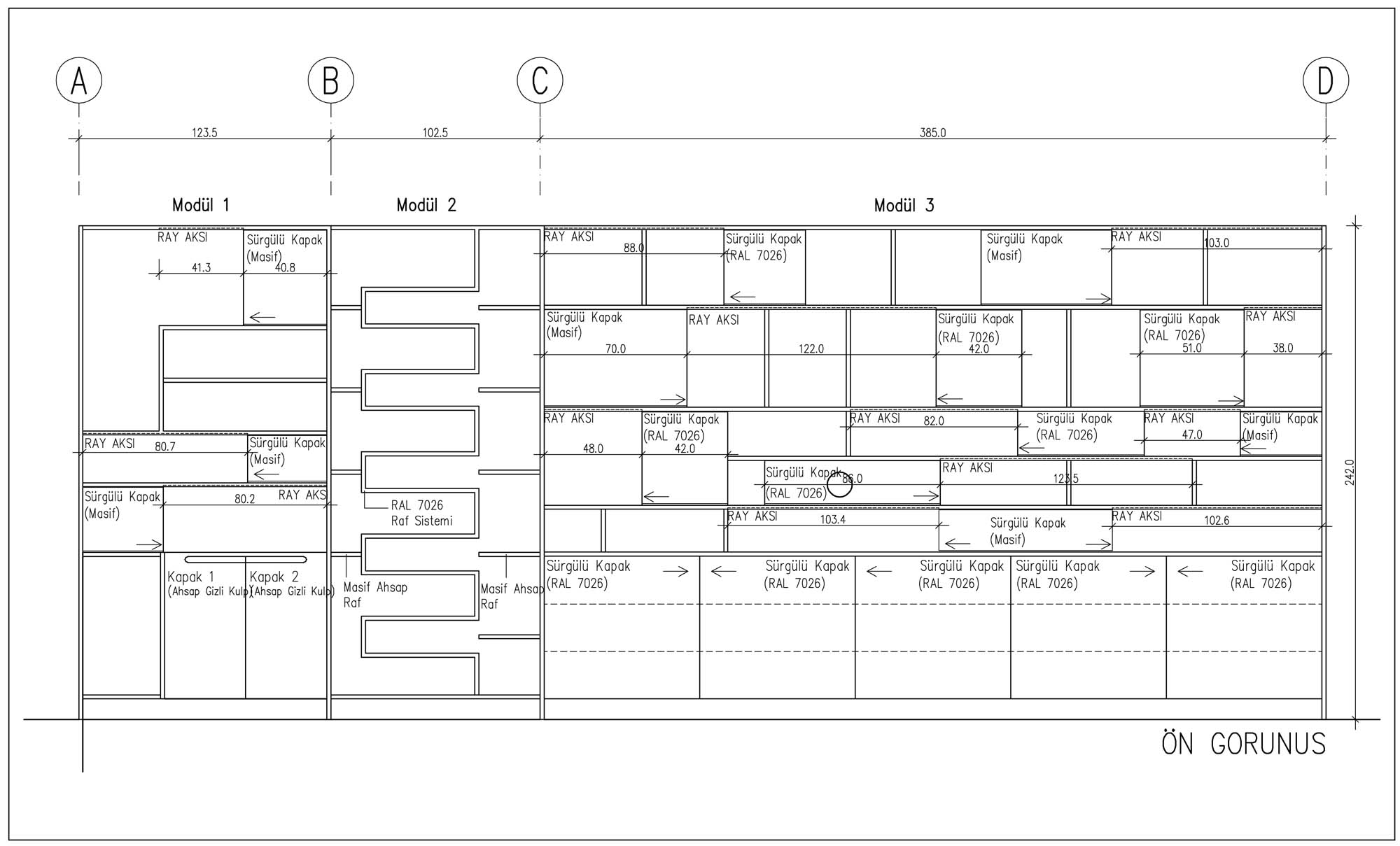
Önder Piyade Çalışma Masası ve Kitaplığı
Proje Yeri: İstanbul, Üsküdar
Proje Ofisi: Mons Mimarlık
Tasarım Ekibi: Ahmet Faruk Yıldırım
İşveren: Önder Piyade
Ana Yüklenici: Mons Mimarlık
Alt Yüklenici: Demosan Mobilya, Tacettin Okumuş
Proje Başlangıç Yılı: 2015
Proje Bitiş Yılı: 2015
İnşaat Başlangıç Yılı: 2015
İnşaat Bitiş Yılı: 2015