24/25
Paylaş
Resmi Orjinal Boyutunda Göster
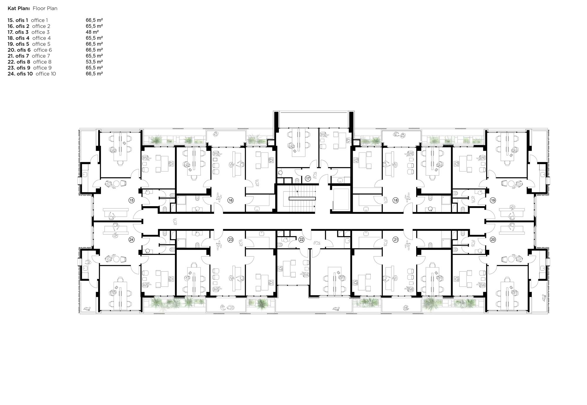
The Perspective Ofis Yapısı
Proje Yeri: Mersin, Yenişehir
Proje Ofisi: Slash Architects, İpek Baycan Architects
Proje Tipi: Ofis
Proje Tipi Grubu: Ticari
Tasarım Ekibi: İpek Baycan Magriso, Şule Ertürk
İşveren: Arıcan İnşaat
Ana Yüklenici: Arıcan İnşaat
Proje Başlangıç Yılı: 2015
Proje Bitiş Yılı: 2015
İnşaat Başlangıç Yılı: 2015
İnşaat Bitiş Yılı: 2017
Toplam İnşaat Alanı: 4.100 m²