23/23
Paylaş
Resmi Orjinal Boyutunda Göster
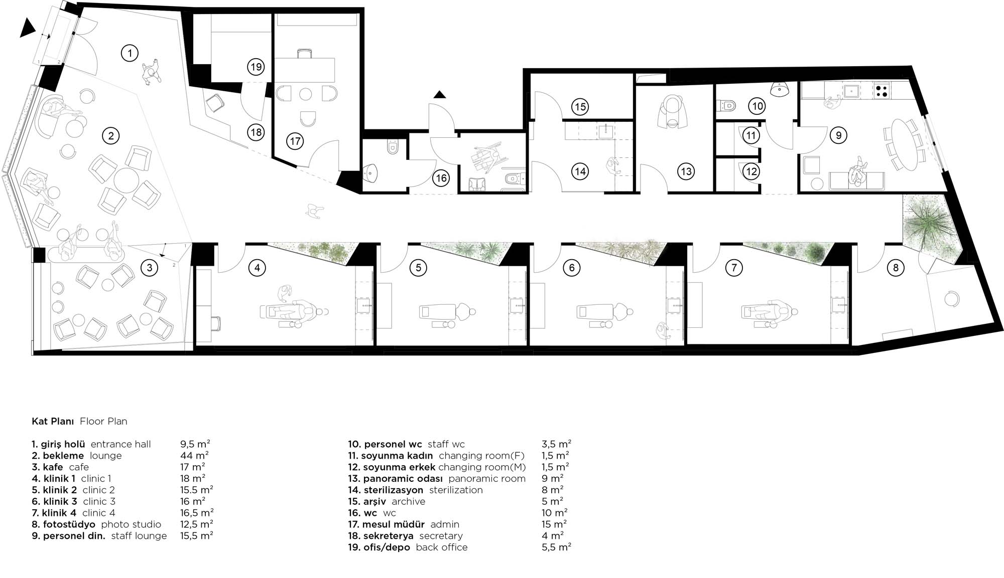
Dentagram Ağız ve Diş Sağlığı Polikliniği
Proje Yeri: Şişli, İstanbul
Proje Ofisi: Slash Architects, İpek Baycan Architects
Proje Tipi: Hastane / Poliklinik
Proje Tipi Grubu: Sağlık
Tasarım Ekibi: Şule Ertürk, İpek Baycan Magriso
Fotoğraf: ALTKAT Architectural Photography
Proje Başlangıç Yılı: 2016
İnşaat Bitiş Yılı: 2017
Toplam İnşaat Alanı: 320 m²