12/17
Paylaş
Resmi Orjinal Boyutunda Göster
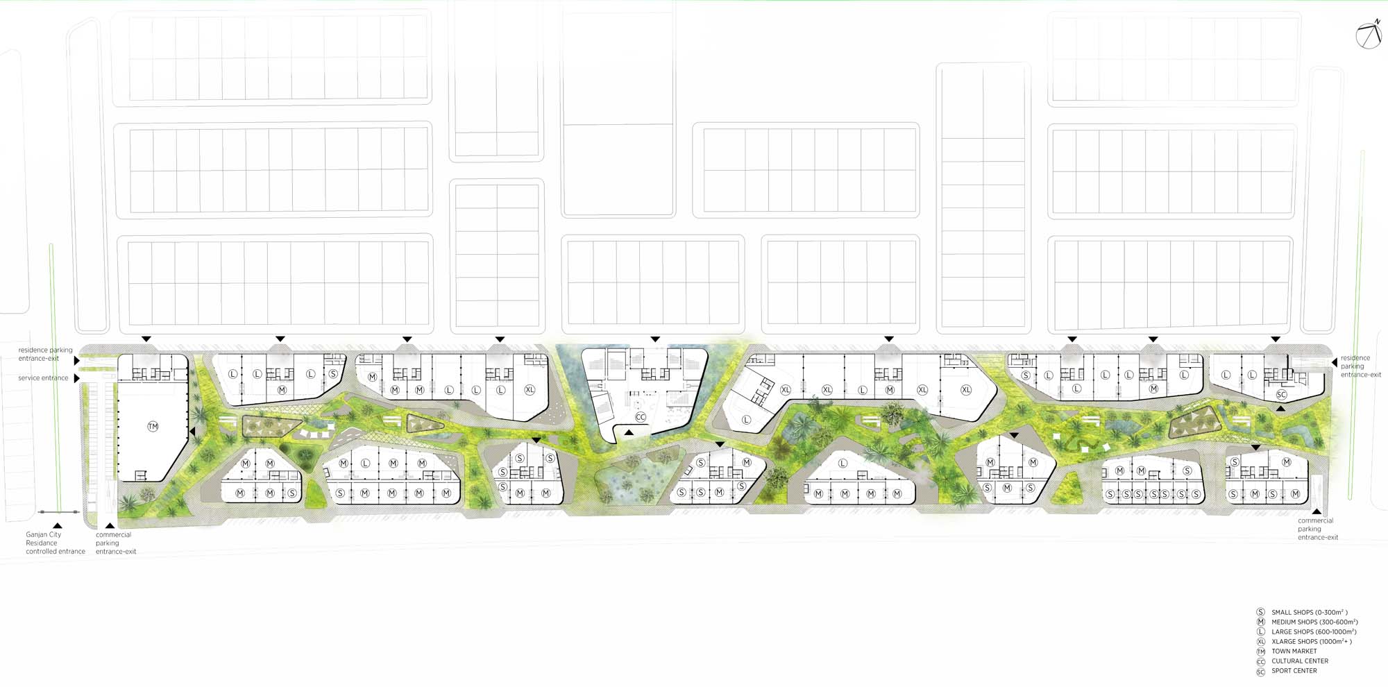
Ganjan New Town Kentsel Tasarım
Proje Yeri: Erbil, Irak
Proje Ofisi: Slash Architects
Proje Tipi: Kentsel Tasarım
Proje Tipi Grubu: Kentsel Tasarım
Tasarım Ekibi: Şule Ertürk
İşveren: Gökkaya İnşaat
Proje Başlangıç Yılı: 2017
Arsa Alanı: 380,000 m²