7/28
Paylaş
Resmi Orjinal Boyutunda Göster
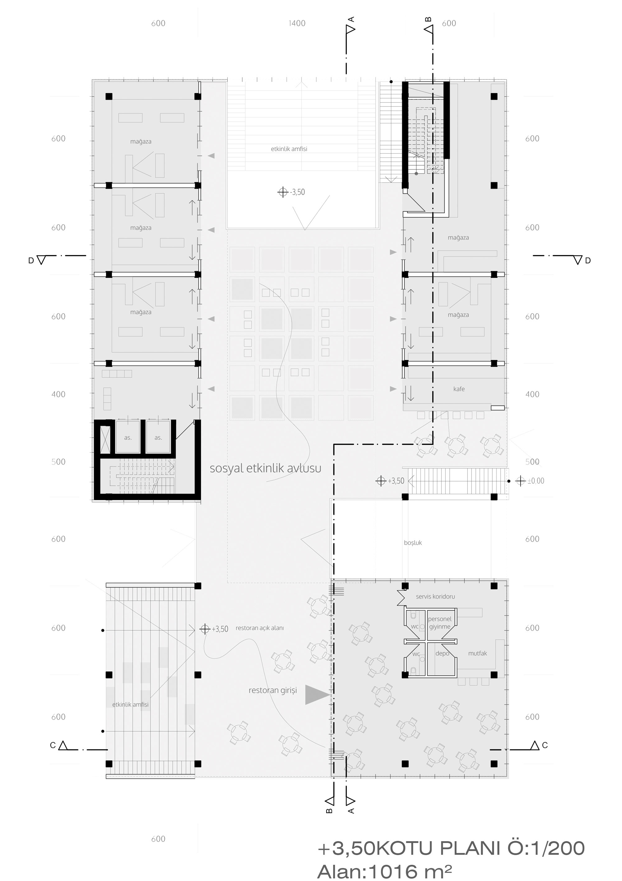
2. Ödül, Merzifon Belediyesi İş ve Yaşam Merkezi Mimari Proje Yarışması
Proje Yeri: Merzifon, Amasya
Proje Ofisi: Rasa Mimarlık
Proje Tipi: Ofis, Diğer Rekreasyon Yapıları
Proje Tipi Grubu: 2. Ödül
Tasarım Ekibi: Tuna Han Koç, Fatma Zeynep Altınbaşlı, Hüseyin Polat
Danışman: Güven Uyaroğlu