27/27
Paylaş
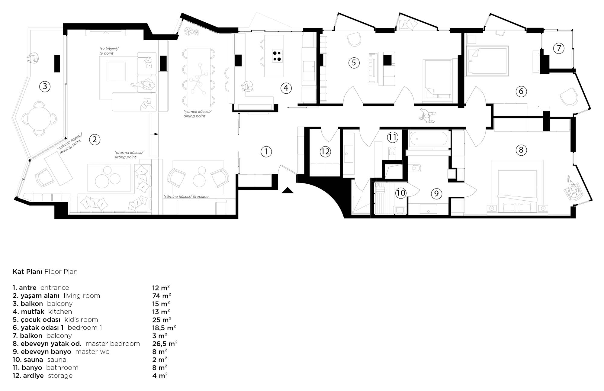
Resmi Orjinal Boyutunda Göster
Moda Evi
Proje Yeri: İstanbul, Kadıköy
Proje Ofisi: Slash Architects
Proje Tipi: Apartman
Proje Tipi Grubu: Konut
Tasarım Ekibi: Şule Ertürk, İpek Baycan Magriso
İşveren: İpek Baycan Magriso, Muharrem Duş
Fotoğraf: ALTKAT Architectural Photography
Proje Başlangıç Yılı: 2016
İnşaat Bitiş Yılı: 2016
Toplam İnşaat Alanı: 250 m²