44/45
Paylaş
Resmi Orjinal Boyutunda Göster
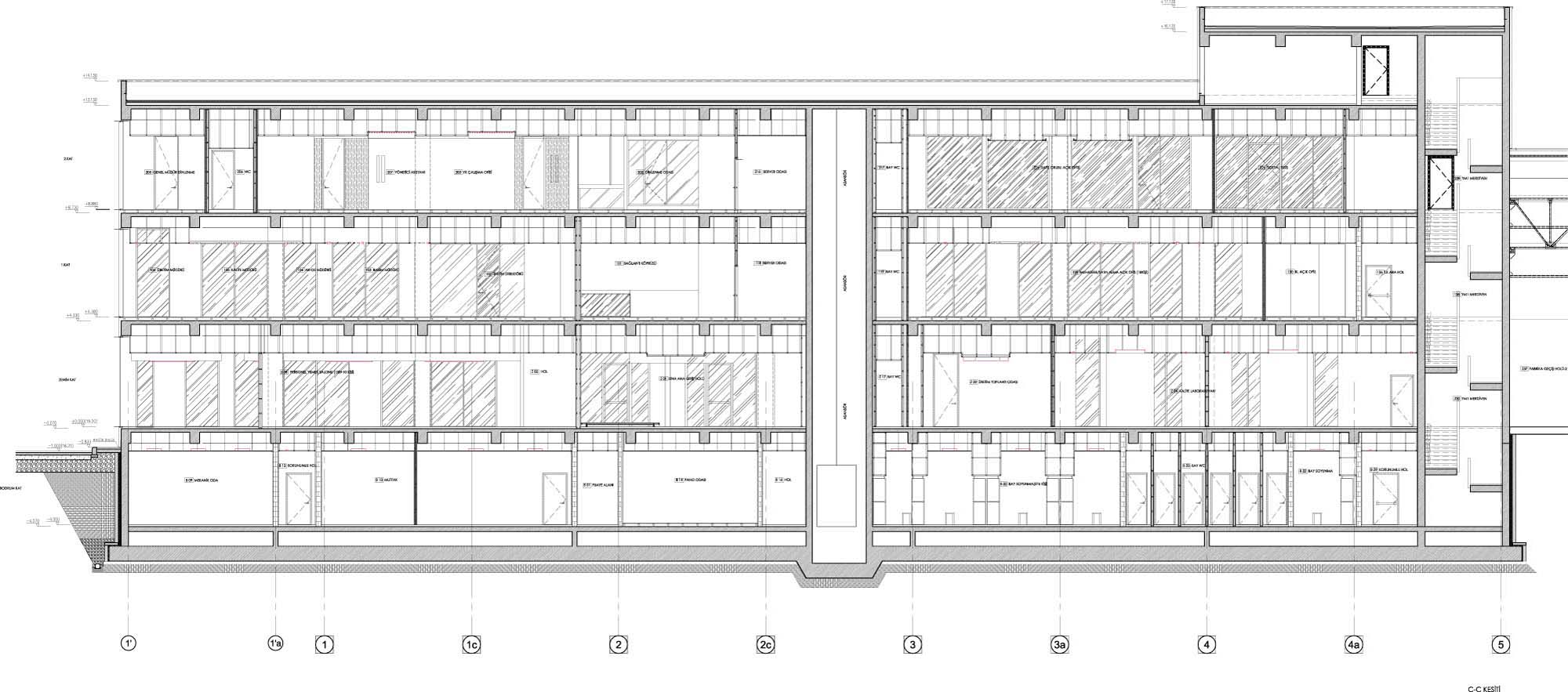
İspak Ambalaj İdari Binası Mimari Konsept ve İç Mekan Tasarımı Projesi
Proje Yeri: Kocaeli (İzmit)
Proje Ofisi: mimaristudio
Proje Tipi: Ofis, Fabrika
Proje Tipi Grubu: Ticari, Endüstriyel
Tasarım Ekibi: Ayça Akkaya Kul, Önder Kul
İşveren: Assan Gayrimenkul Geliştirme ve Yatırım AŞ, İspak Ambalaj
Yardımcı: Tolga Bozok, Kaan Gülkıran
Ana Yüklenici: Sistema
Peyzaj Mimarlığı: Floramarla
İç Mekan Projesi: mimaristudio
Proje Yöneticisi: Entegre Proje Yönetim Danışmanlık, Assan Gayrimenkul Geliştirme ve Yatırım AŞ
Konsept Tasarımı: mimaristudio
Uygulama Projesi: Prokon
Cephe Tasarımı: mimaristudio, CWG
Aydınlatma Projesi: mimaristudio
Grafik Tasarım: mimaristudio, Future-ist
Statik Projesi: Prokon
Mekanik Projesi: Prokon
Elektrik Projesi: Prokon
Tesisat Projesi: Prokon
Çelik Projesi: Prokon
Altyapı Projesi: Prokon
Yangın Tahliye Projesi: Prokon
Fotoğraf: Gürkan Akay
Mimari Mesleki Kontrollük: mimaristudio
Şantiye Yöneticisi: Nejdi Özaltun, Sistema
Proje Başlangıç Yılı: 2016
Proje Bitiş Yılı: 2017
İnşaat Başlangıç Yılı: 2016
İnşaat Bitiş Yılı: 2017
Toplam İnşaat Alanı: 4,500 m²