15/30
Paylaş
Resmi Orjinal Boyutunda Göster
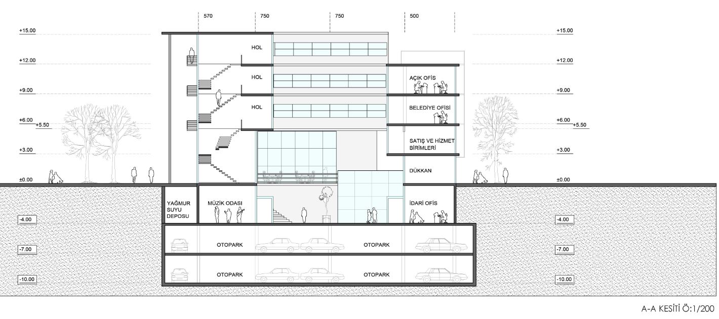
Katılımcı, Merzifon Belediyesi İş ve Yaşam Merkezi Mimari Proje Yarışması
Project Location: Merzifon, Amasya
Project Type: Offices, Other Recreational Buildinds
Proje Tipi Grubu: Katılımcı
Tasarım Ekibi: Tamer Aydın, Meryem Ergün, Nisan Hacet
Yardımcı: Sevde Sağlam, Sinem Uğun