19/29
Paylaş
Resmi Orjinal Boyutunda Göster
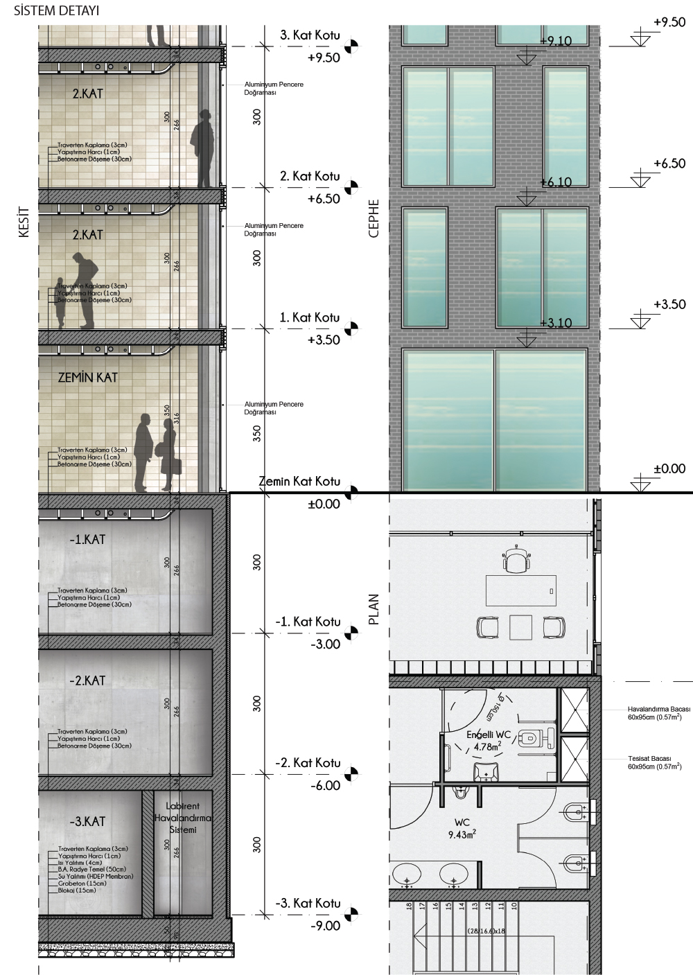
Katılımcı, Merzifon Belediyesi İş ve Yaşam Merkezi Mimari Proje Yarışması
Proje Yeri: Merzifon, Amasya
Proje Tipi: Ofis, Diğer Rekreasyon Yapıları
Proje Tipi Grubu: Katılımcı
Tasarım Ekibi: A.Nejat İçöz, D. Ahmet Doğan, Ilga Cengiz
Yardımcı: Ömer Furkan Yılmaz, Muhsin Saral