20/20
Paylaş
Resmi Orjinal Boyutunda Göster
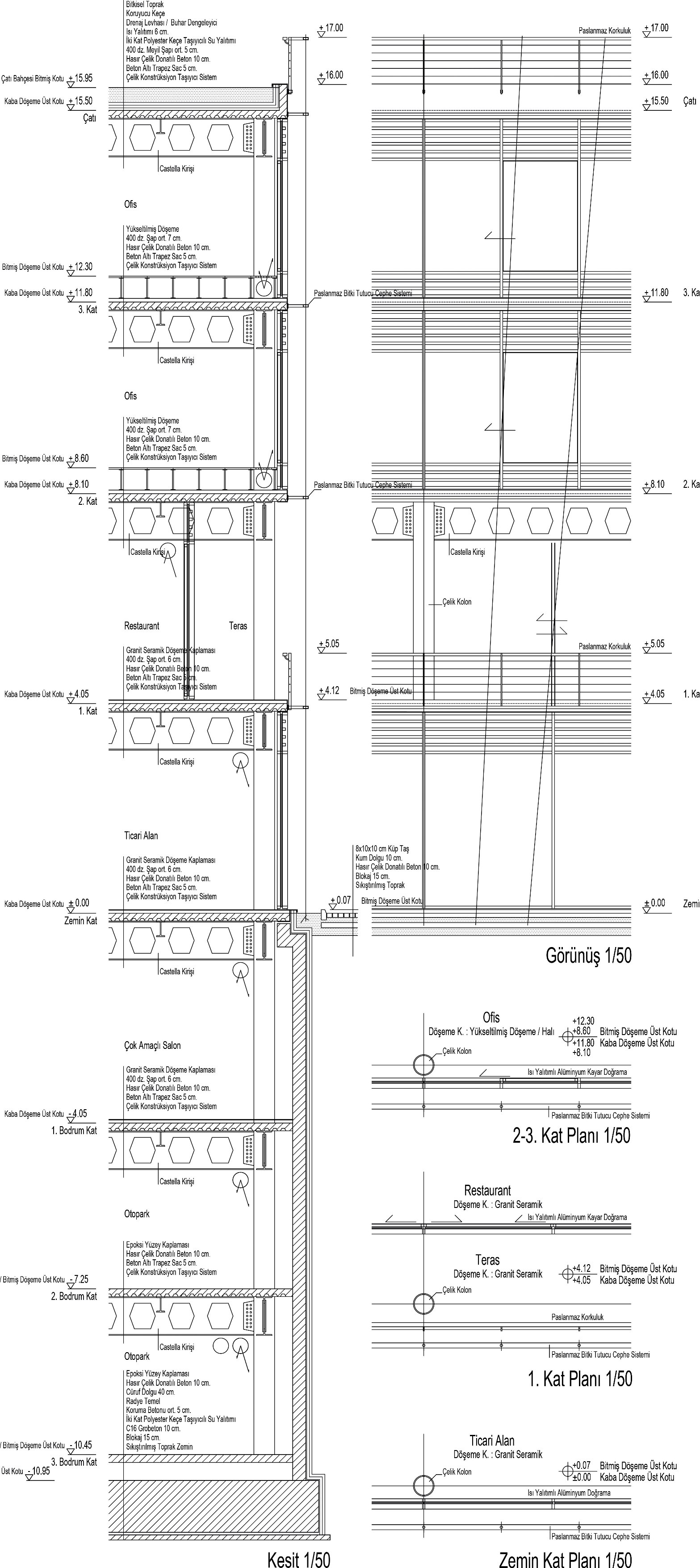
Katılımcı, Merzifon Belediyesi İş ve Yaşam Merkezi Mimari Proje Yarışması
Project Location: Merzifon, Amasya
Project Type: Other Recreational Buildinds, Offices
Proje Tipi Grubu: Katılımcı
Tasarım Ekibi: Erol Türkmen, Ergun Türkmen
Consultant: Mehmet Ceyani, Ünal Anaç, Ali Göçmen
Yardımcı: Doruk Kaya, Aylin Turna, Tuğba Ceyani, Tunç Türkmen