11/20
Paylaş
Resmi Orjinal Boyutunda Göster
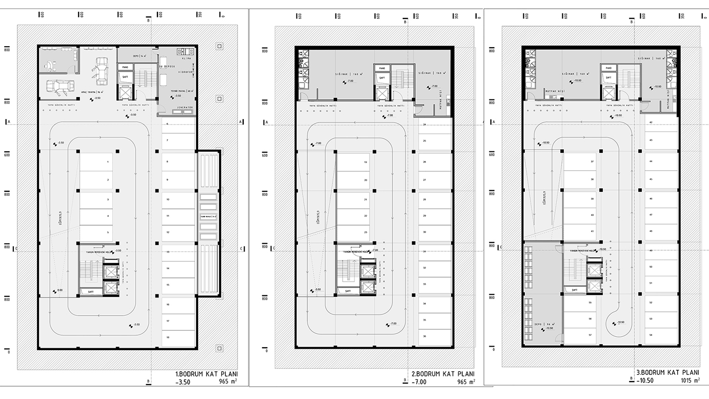
Katılımcı, Merzifon Belediyesi İş ve Yaşam Merkezi Mimari Proje Yarışması
Project Location: Amasya, Merzifon
Project Type: Offices, Other Recreational Buildinds
Proje Tipi Grubu: Katılımcı
Tasarım Ekibi: Recep Utku, Mustafa Elönü, Ahmet Öğüt
Yardımcı: Elif Bağkale