8/22
Paylaş
Resmi Orjinal Boyutunda Göster
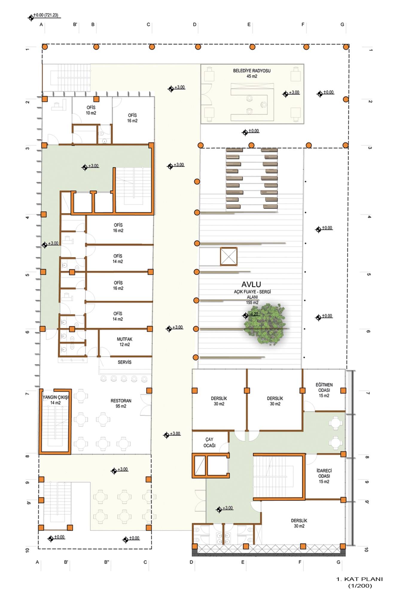
Katılımcı, Merzifon Belediyesi İş ve Yaşam Merkezi Mimari Proje Yarışması
Project Location: Merzifon, Amasya
Project Type: Other Recreational Buildinds, Offices
Proje Tipi Grubu: Katılımcı
Tasarım Ekibi: Kürşat Açıkgöz, Büşra Nalbant
Consultant: Muharrem Ercan