4/13
Paylaş
Resmi Orjinal Boyutunda Göster
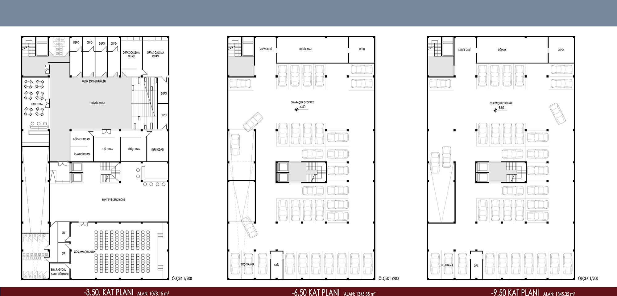
KATILIMCI , T.C. MERZİFON BELEDİYESİ İŞ VE YAŞAM MERKEZİ ULUSAL MİMARİ PROJE YARIŞMASI
Proje Yeri: Amasya, Merzifon
Proje Tipi: Ofis, Diğer Rekreasyon Yapıları
Proje Tipi Grubu: Katılımcı
Tasarım Ekibi: Ömer Çelikkol, İrem Selçuk, Ceyda Turan, Burcu Filiz Demirci, Pelin Bayar, Gizem Karabaş