3/11
Paylaş
Resmi Orjinal Boyutunda Göster
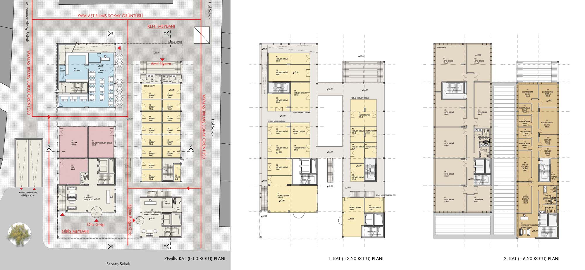
OSO Mimarlık Merzifon Belediyesi İş ve Yaşam Merkezi Mimari Proje Yarışması
Proje Yeri: Amasya, Merzifon
Proje Ofisi: OSO Mimarlık
Proje Tipi: Diğer Rekreasyon Yapıları, Ofis
Proje Tipi Grubu: Katılımcı
Tasarım Ekibi: Okan Bayık, Serhan Bayık, Ozan Bayık, Gülsenem Sütcü, B. Bahar Çiçekçi
Danışman: Hakan Çatalkaya
Proje Başlangıç Yılı: 2017