9/15
Paylaş
Resmi Orjinal Boyutunda Göster
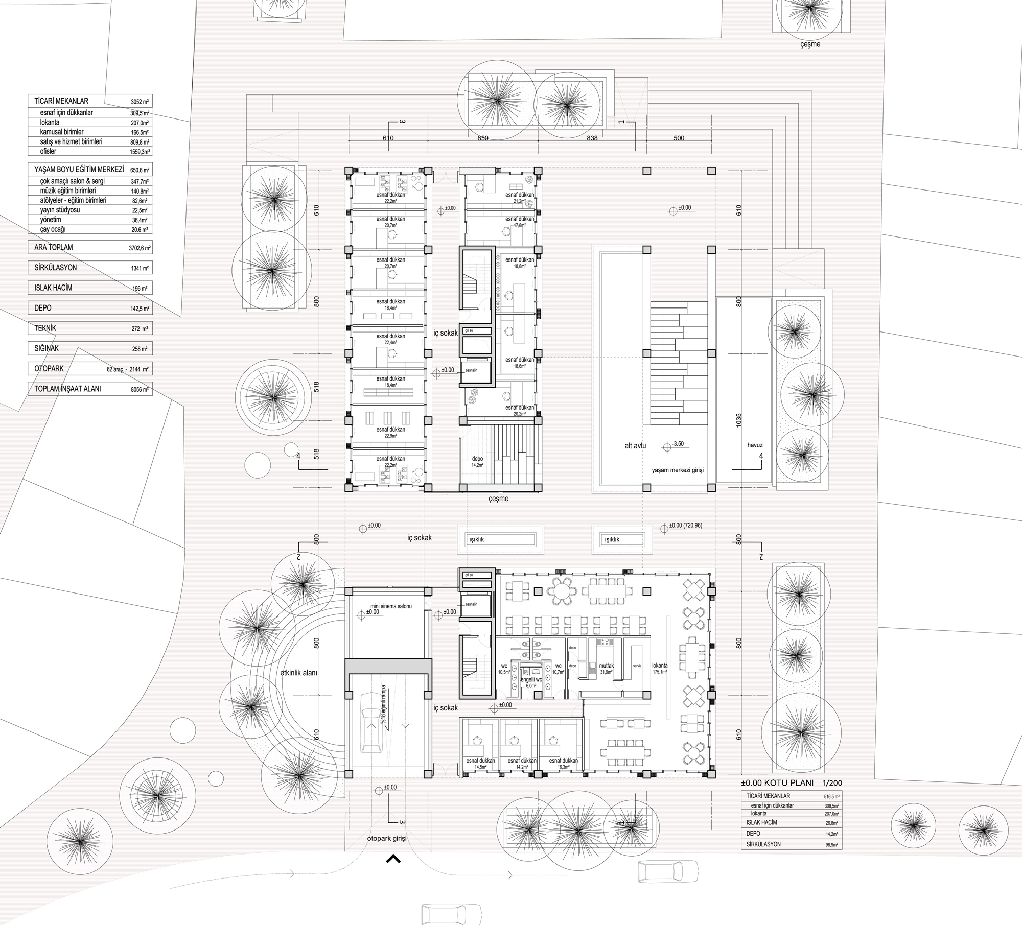
Katılımcı, Merzifon Belediyesi İş ve Yaşam Merkezi Mimari Proje Yarışması
Proje Yeri: Amasya, Merzifon
Proje Tipi: Ofis, Diğer Rekreasyon Yapıları
Proje Tipi Grubu: Katılımcı
Tasarım Ekibi: Tuğgen Kukul, Hasan Yaren
Yardımcı: Yiğit Babacan, Ömer Kukul
Statik Projesi: Noyan Şenel