11/22
Paylaş
Resmi Orjinal Boyutunda Göster
Katılımcı, Merzifon Belediyesi İş ve Yaşam Merkezi Mimari Proje Yarışması
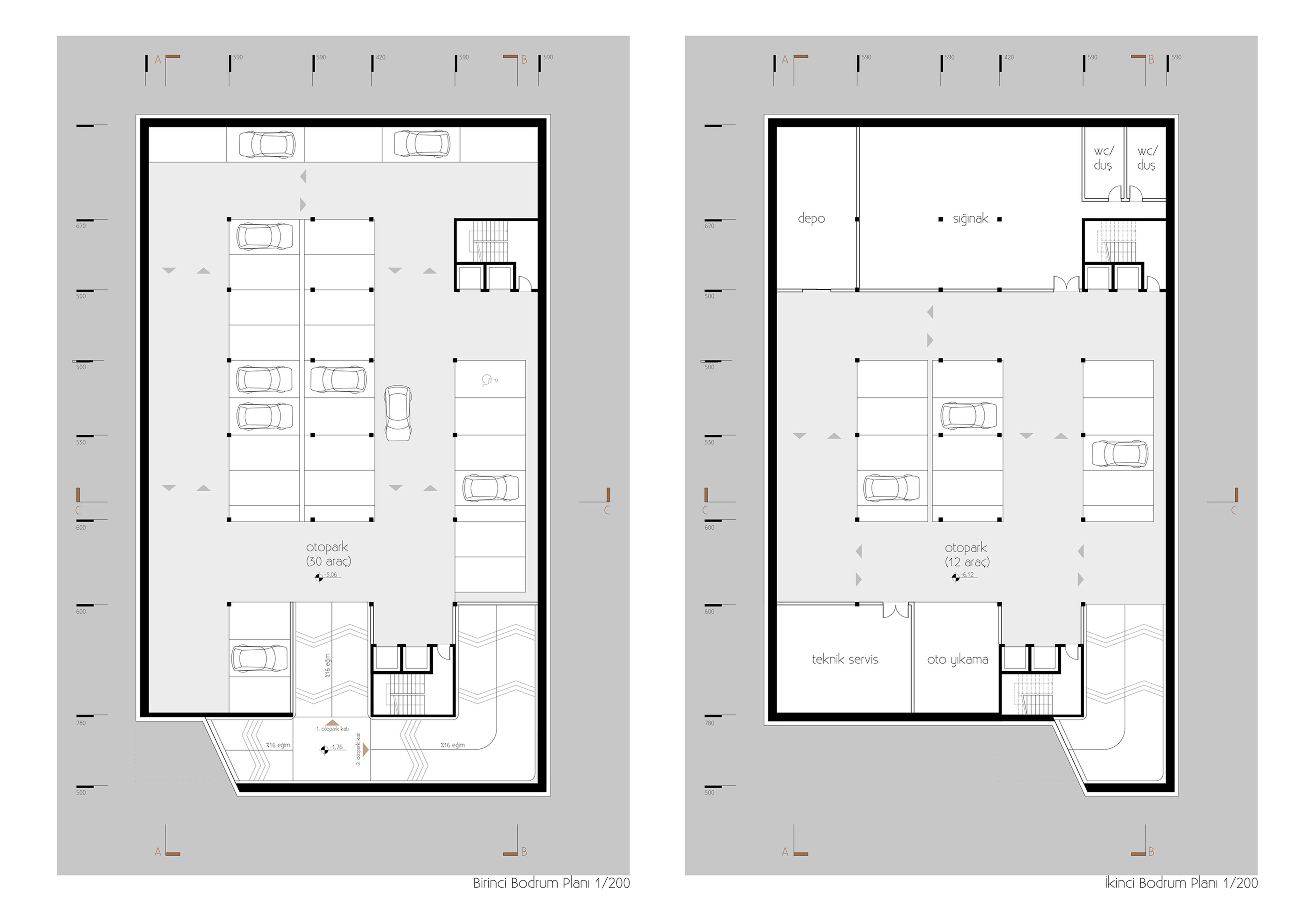
Proje Yeri: Amasya, Merzifon
Proje Tipi: Ofis, Diğer Rekreasyon Yapıları
Proje Tipi Grubu: Katılımcı
Tasarım Ekibi: Zeynep Eslem Banaz, Cansu Bıçakcı