34/39
Paylaş
Resmi Orjinal Boyutunda Göster
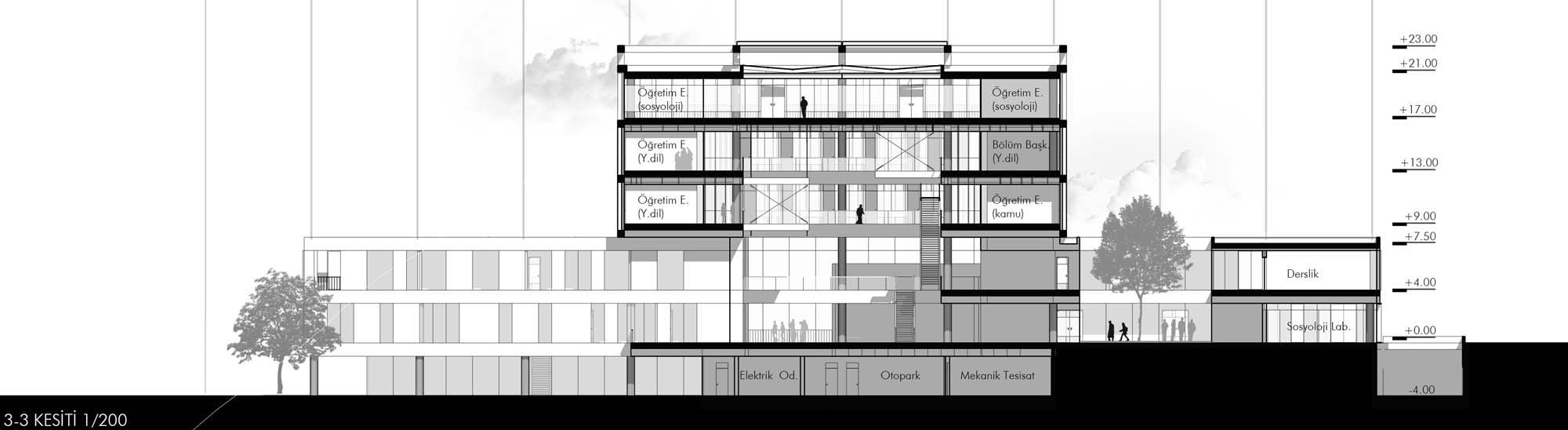
Kara Harp Okulu Laboratuvar Merkezi
Project Location: Ankara, Çankaya
Project Office: FREA, SCRA Mimarlık
Project Type: Other Education Buildings, R&D Building
Proje Tipi Grubu: Kamu
Tasarım Ekibi: Ömer Emre Şavural, Fatih Yavuz, Seden Cinasal Avcı, Ramazan Avcı
Employer: Havelsan
Yardımcı: Esra Nur Barakat, Merve Görkem, Betül Dönmez, Meryem Merve Topdaş, Sümeyra Elçin, Beria Girgin
Ana Yüklenici: As İnşaat
Peyzaj Mimarlığı: Propey Peyzaj
Interior Architecture: FREA, SCRA Mimarlık, Ayaz&Ergin Mimarlık
Lighting Project: MCC Aydınlatma
Structural Project: Mehmet Zafer Kınacı
Electrical Project: Kemal Ovacık
Plumbing Project: Bahri Türkmen
Çelik Projesi: Mehmet Zafer Kınacı
Altyapı Projesi: Barbaros Bıçakçı
Yangın Tahliye Projesi: Karina Mühendislik
Fire Safety Consultant: Tanju Ataylar
Photography: Yercekim Mimari Fotograf
Construction Site Manager: TÜMAŞ
Project Start Date: 2013
Project End Date: 2014
Construction Start Date: 2014
Construction End Date: 2017
Building Plot Area: 15,000 m²
Total Construction Area: 20,000 m²