9/11
Paylaş
Resmi Orjinal Boyutunda Göster
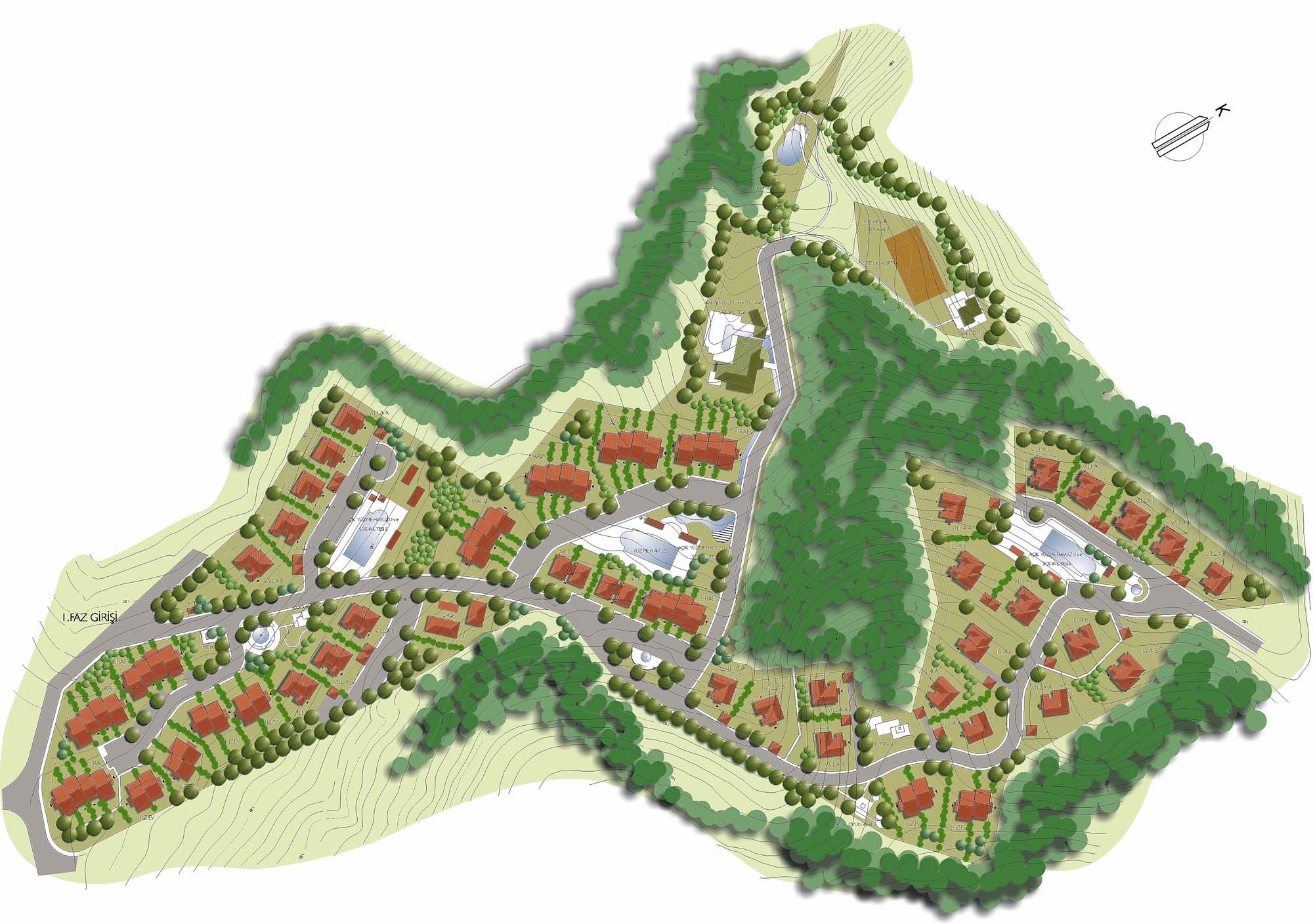
Maya Çekmeköy
Project Location: Çekmeköy, İstanbul
Project Office: Cemal Mutlu Mimarlık, Mozaik Mimarlık
Project Type: Housing Complex
Proje Tipi Grubu: Konut
Tasarım Ekibi: Cemal Mutlu, Fitnat Eylül, Türkiz Özbursalı
Employer: Maya Gayrimenkul Yatırım Ortaklığı
Yardımcı: Ferhat Sürek, Barbaros Gezerman, Burcu Ayata
Project Start Date: 2002
Building Plot Area: 147,000 m²