22/22
Paylaş
Resmi Orjinal Boyutunda Göster
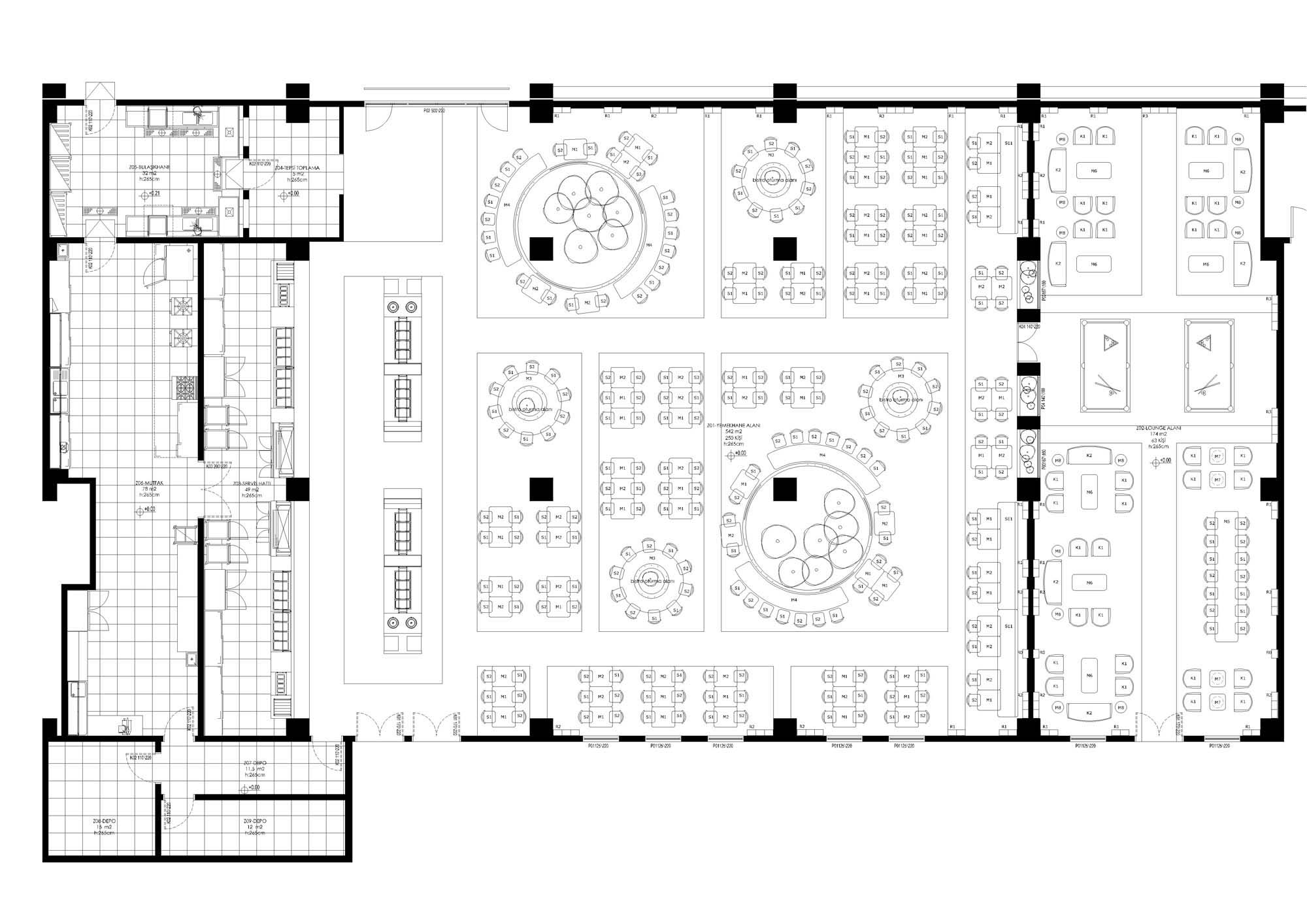
Doğuş Center Restoran
Proje Yeri: Sarıyer, İstanbul
Proje Ofisi: Çağlayan Architects
Proje Tipi: Restoran / Kafe / Bar
Proje Tipi Grubu: Ticari
Tasarım Ekibi: Umut Cem Çağlayan
İşveren: Doğuş Otomotiv
Ana Yüklenici: Çağlayan Architects
Proje Başlangıç Yılı: 2014
Proje Bitiş Yılı: 2014
İnşaat Başlangıç Yılı: 2014
İnşaat Bitiş Yılı: 2014
Toplam İnşaat Alanı: 1000 m2