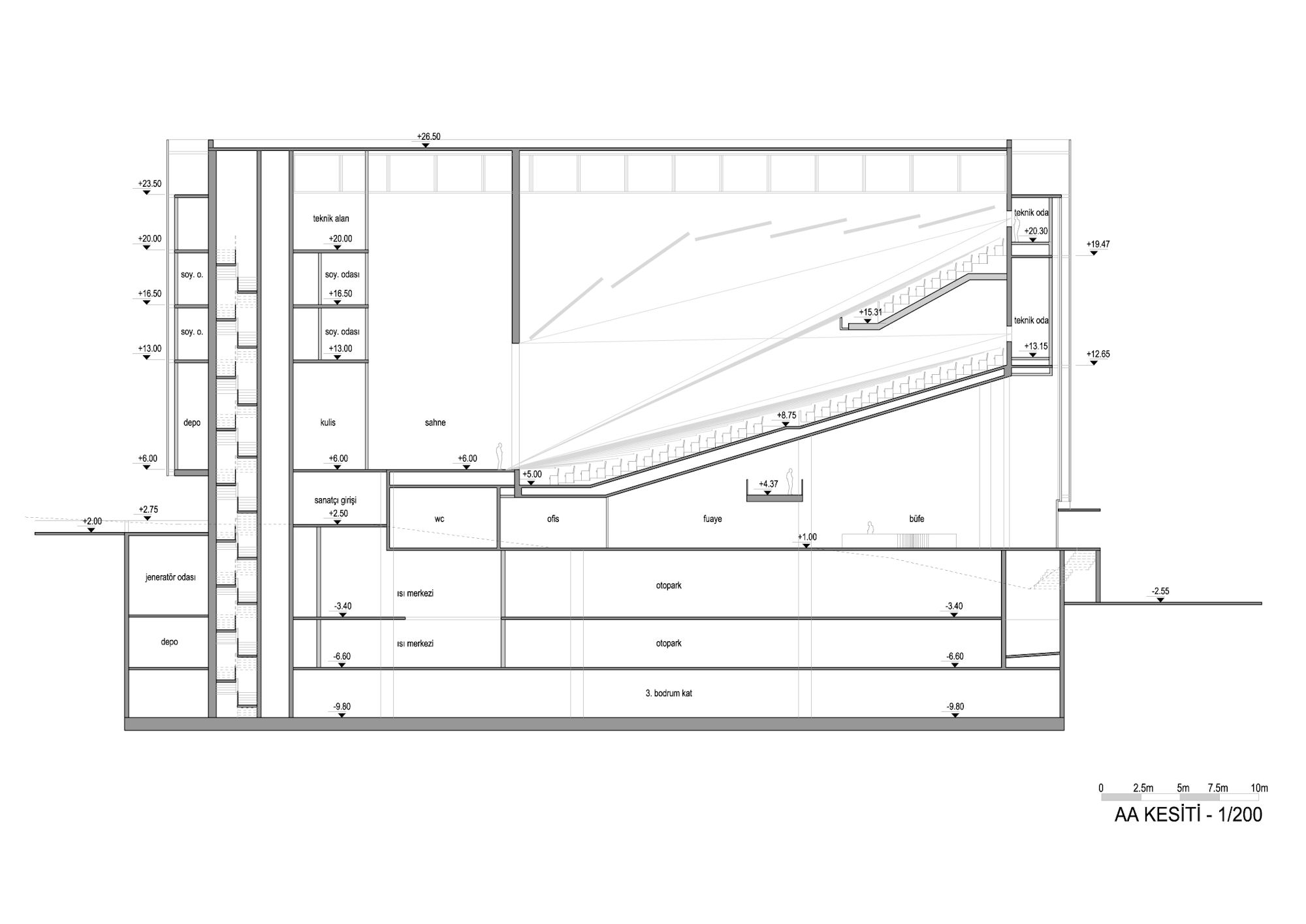
Kesit
11/14
Paylaş
Resmi Orjinal Boyutunda Göster
Halide Edip Adıvar Kültür Merkezi
Proje Yeri: Şişli, İstanbul
Proje Ofisi: Boran Ekinci Mimarlık, Hakan Dalokay Mimarlık
Proje Tipi: Kültür Merkezi
Proje Tipi Grubu: Kültür
Tasarım Ekibi: Hakan Dalokay, Boran Ekinci
Proje Bitiş Yılı: 2010