14/22
Paylaş
Resmi Orjinal Boyutunda Göster
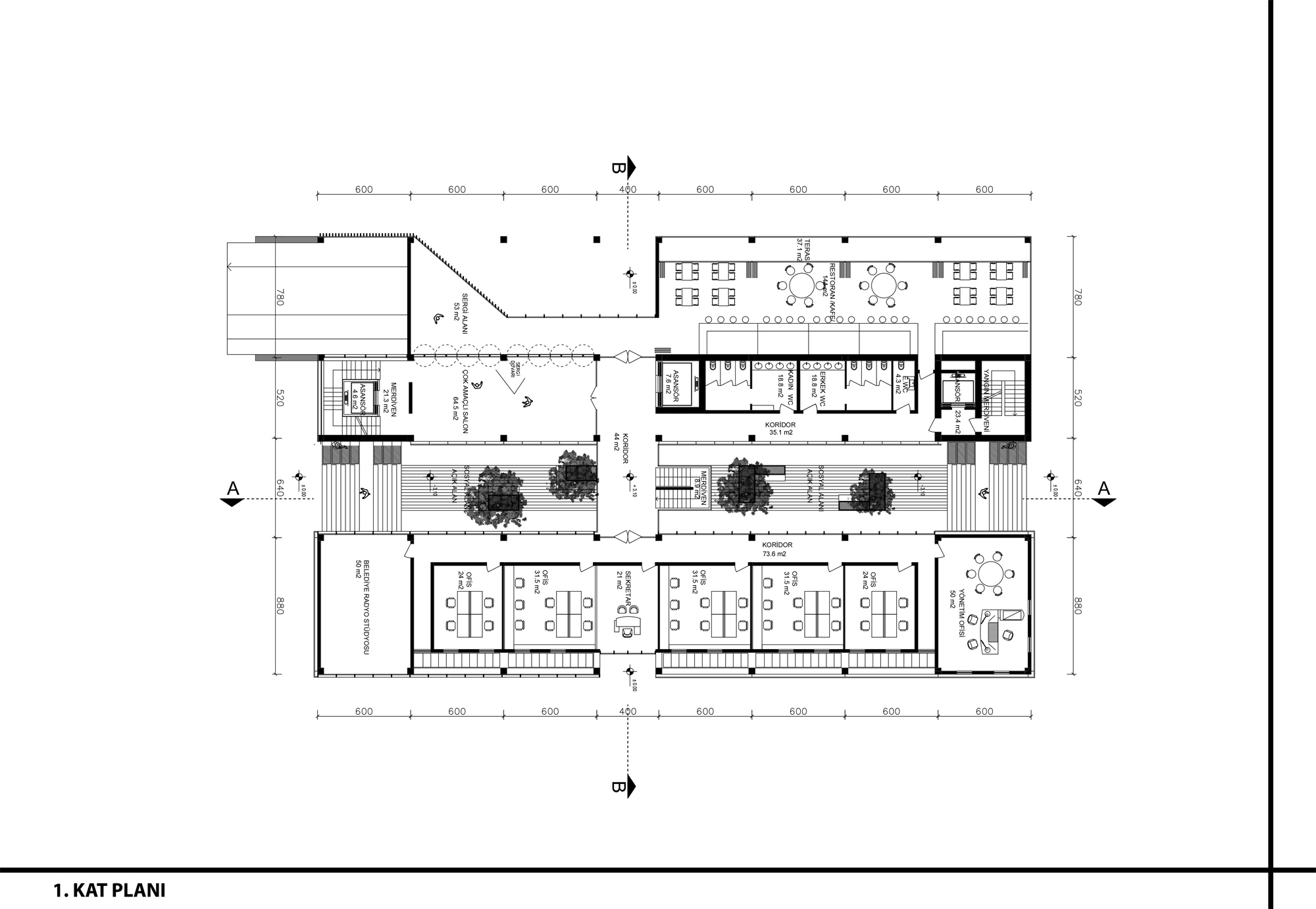
Katılımcı, Merzifon Belediyesi İş ve Yaşam Merkezi Mimari Proje Yarışması
Project Location: Amasya, Merzifon
Project Type: Offices, Other Recreational Buildinds
Proje Tipi Grubu: Katılımcı
Tasarım Ekibi: Yasir Oktay
Consultant: Özgür Demiralp, Fadime Yalçınkaya
Yardımcı: Tijana Veljković, Enisa Kevelj