12/12
Paylaş
Resmi Orjinal Boyutunda Göster
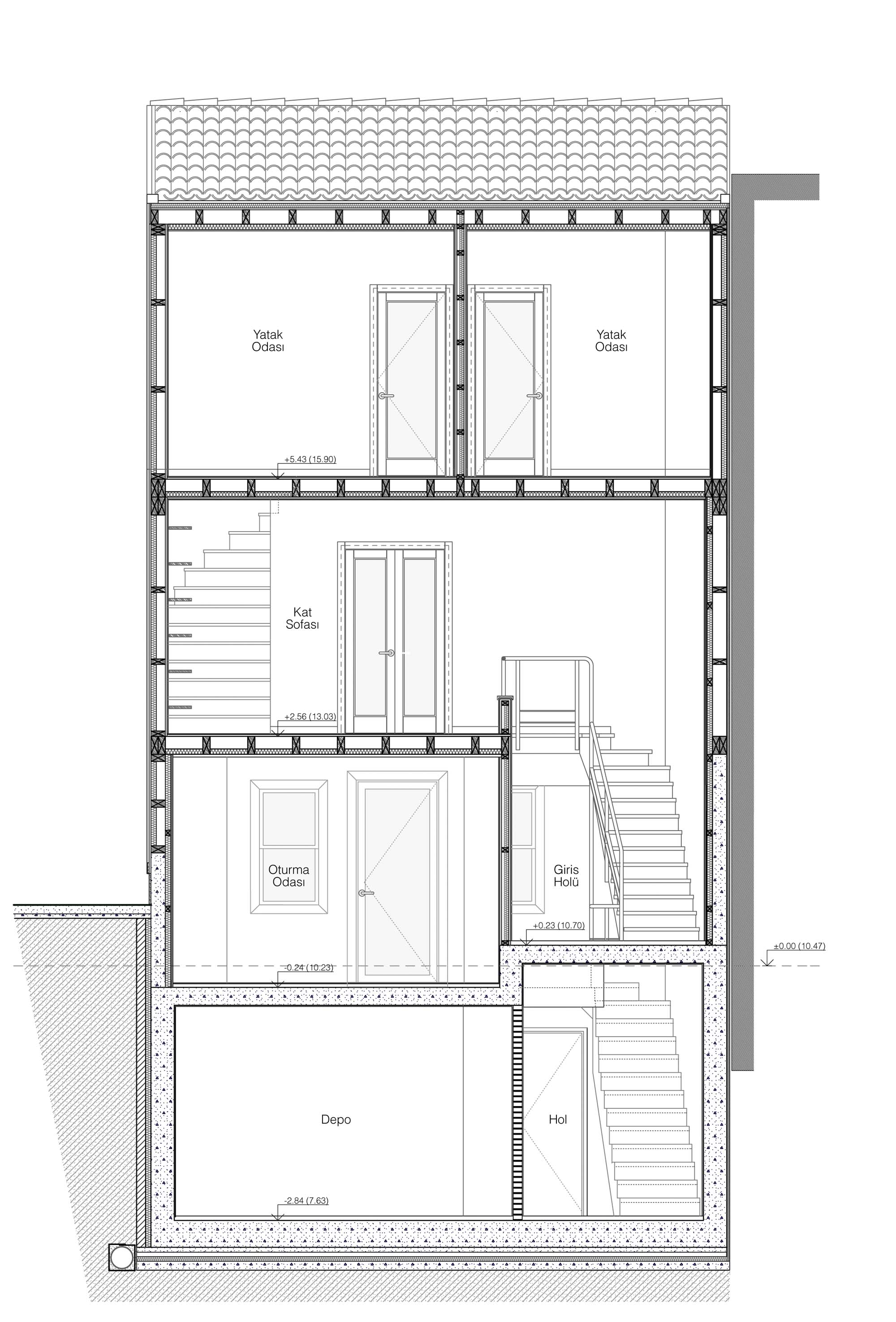
Ahşap Konut Restorasyonu
Proje Yeri: Sarıyer, İstanbul
Proje Ofisi: UrbAr Kentleşme ve Mimarlık
Proje Tipi: Tek Ev / Villa
Proje Tipi Grubu: Konut
Tasarım Ekibi: Ali Kural, B. Deniz Çalış, Ersel Oltulu
Yardımcı: Sezin Taner, Okan Dedeoğlu
Ana Yüklenici: Mustafa Şahan, Şahan Ahşap
Statik Projesi: Ahmed Saral
Mekanik Projesi: Hakan Yazman, Yazman Mühendislik
Elektrik Projesi: Mustafa Ülkü, Akay Mühendislik
Fotoğraf: Ali Kural
Proje Başlangıç Yılı: 2013
İnşaat Bitiş Yılı: 2017
Arsa Alanı: 120 m2
Toplam İnşaat Alanı: 200 m2