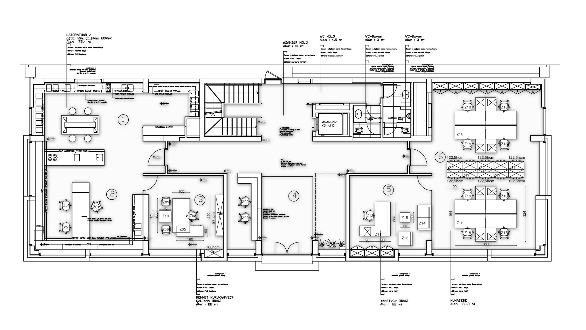
Plan
24/26
Paylaş
Resmi Orjinal Boyutunda Göster
Kurukahveci Mehmet Efendi Mahdumları Merkez Ofisi
Proje Yeri: Dudullu, İstanbul
Proje Ofisi: TeamFores
Proje Tipi: Ofis
Tasarım Ekibi: Serter Karataban
İşveren: Kurukahveci Mehmet Efendi Mahdumları
Yardımcı: Ceyda Atıcı
Proje Başlangıç Yılı: 2009
Proje Bitiş Yılı: 2009
İnşaat Başlangıç Yılı: 2009
İnşaat Bitiş Yılı: 2010
Toplam İnşaat Alanı: 1.050 m2