14/16
Paylaş
Resmi Orjinal Boyutunda Göster
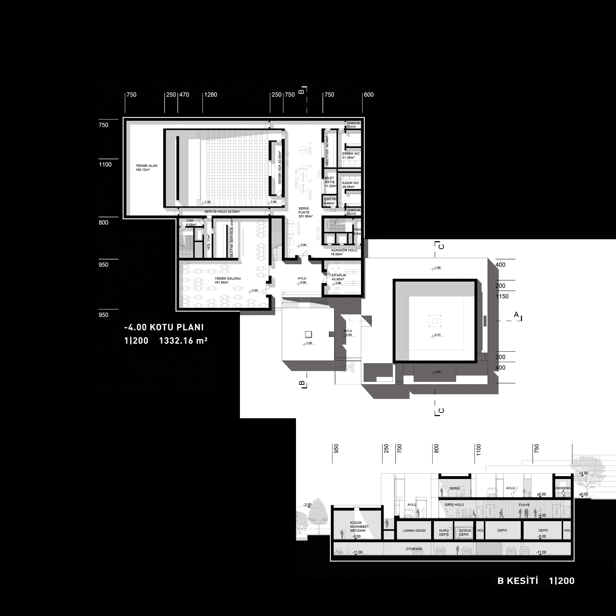
2. Ödül, Uzundere Cemevi Sosyokültürel Merkez Ulusal Mimari Fikir Projesi Yarışması
Project Location: İzmir
Project Office: 9016 Mimarlık
Project Type: Cem House, Cultural Center
Tasarım Ekibi: Mehmet Metin Polat, Bilge Altuğ
Consultant: Gökhan Turan, Gizem Özer
Yardımcı: Ecem Özden