24/24
Paylaş
Resmi Orjinal Boyutunda Göster
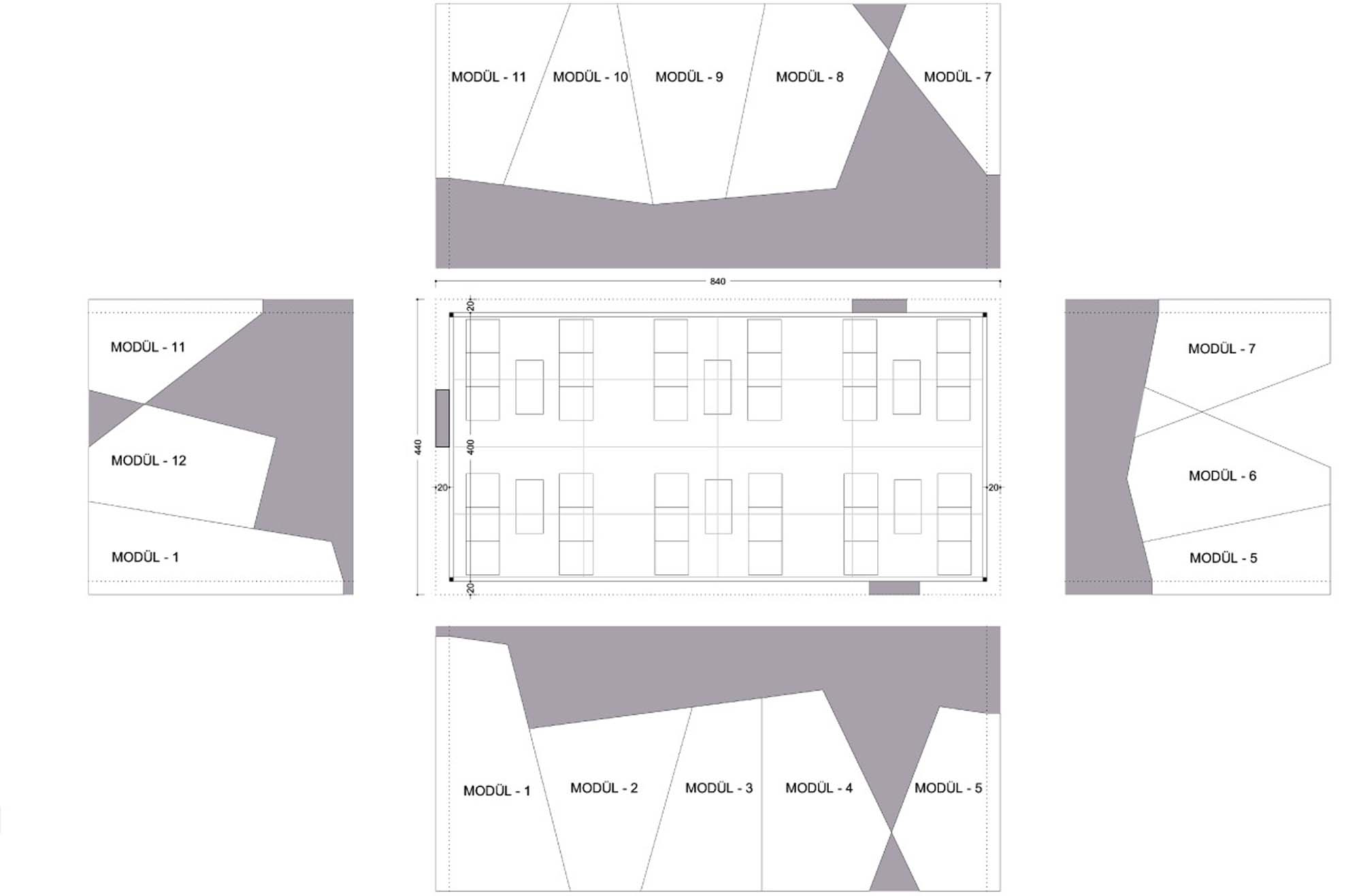
Çebi Intermob 2017 Fuar Standı
Proje Yeri: Büyükçekmece, İstanbul
Proje Ofisi: KAAT Mimarlık
Proje Tipi: Stant Tasarımı
Proje Tipi Grubu: Ticari
Tasarım Ekibi: Sacit Arda Karaatlı, Lebriz Atan Karaatlı
İşveren: Çebi Kilit ve Mobilya Aksesuarları
Ana Yüklenici: Mimarlar Ltd. Şti.
Grafik Tasarım: C4s Creative Solutions
Fotoğraf: Orhun Ülgen
Proje Başlangıç Yılı: 2017
Proje Bitiş Yılı: 2017
İnşaat Başlangıç Yılı: 2017
İnşaat Bitiş Yılı: 2017
Toplam İnşaat Alanı: 210 m²