17/17
Paylaş
Resmi Orjinal Boyutunda Göster
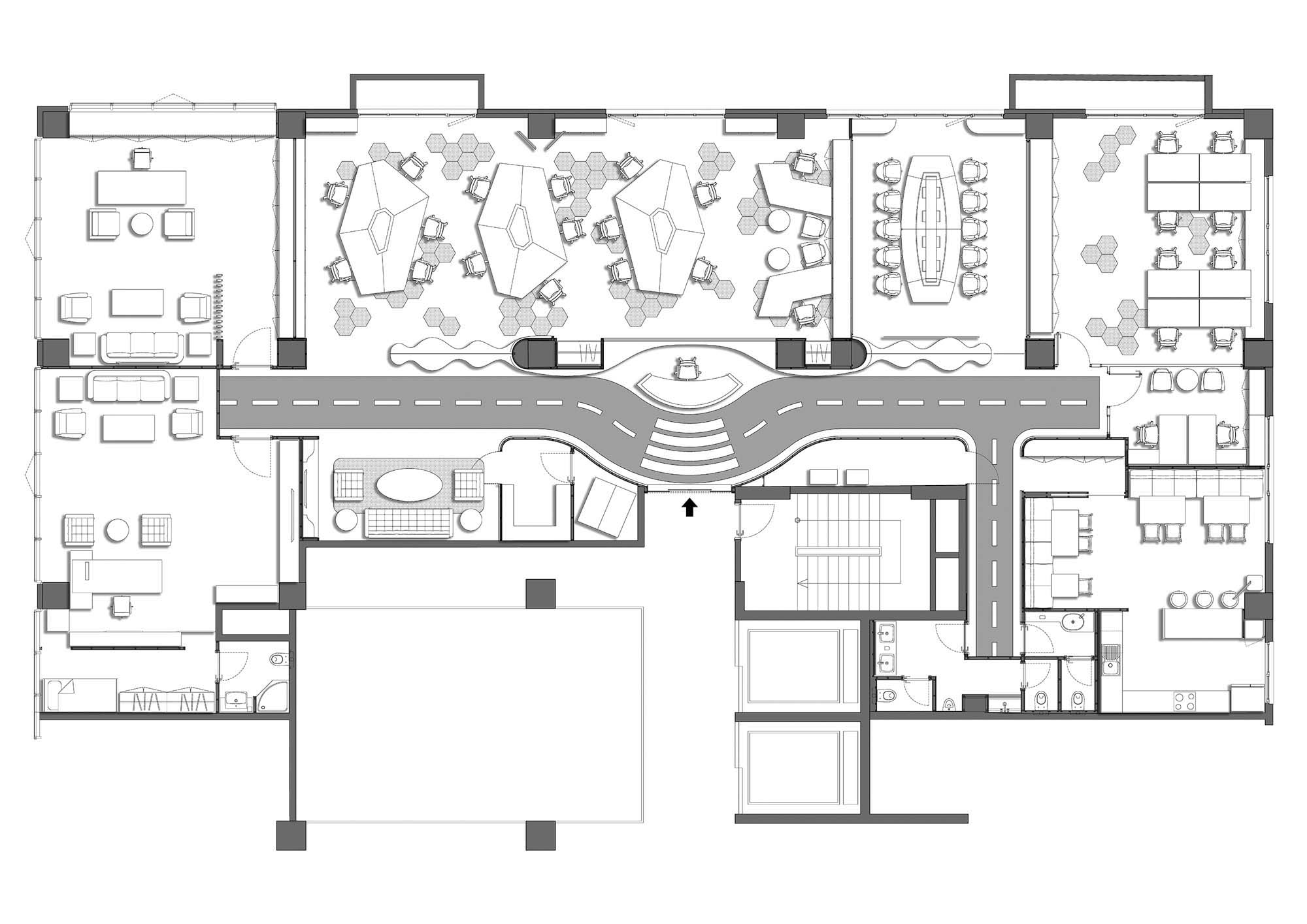
Transbatur
Proje Yeri: İstanbul, Beylikdüzü
Proje Ofisi: OSO Mimarlık
Proje Tipi: Ofis
Proje Tipi Grubu: Ticari
Tasarım Ekibi: Ozan Bayık, Serhan Bayık, Okan Bayık
İşveren: Transbatur
Yardımcı: Erkan Çeçen, B. Bahar Çiçekçi
Ana Yüklenici: OSO Mimarlık
Proje Başlangıç Yılı: 2017
Proje Bitiş Yılı: 2017
İnşaat Başlangıç Yılı: 2017
İnşaat Bitiş Yılı: 2017
Toplam İnşaat Alanı: 500 m2