12/18
Paylaş
Resmi Orjinal Boyutunda Göster
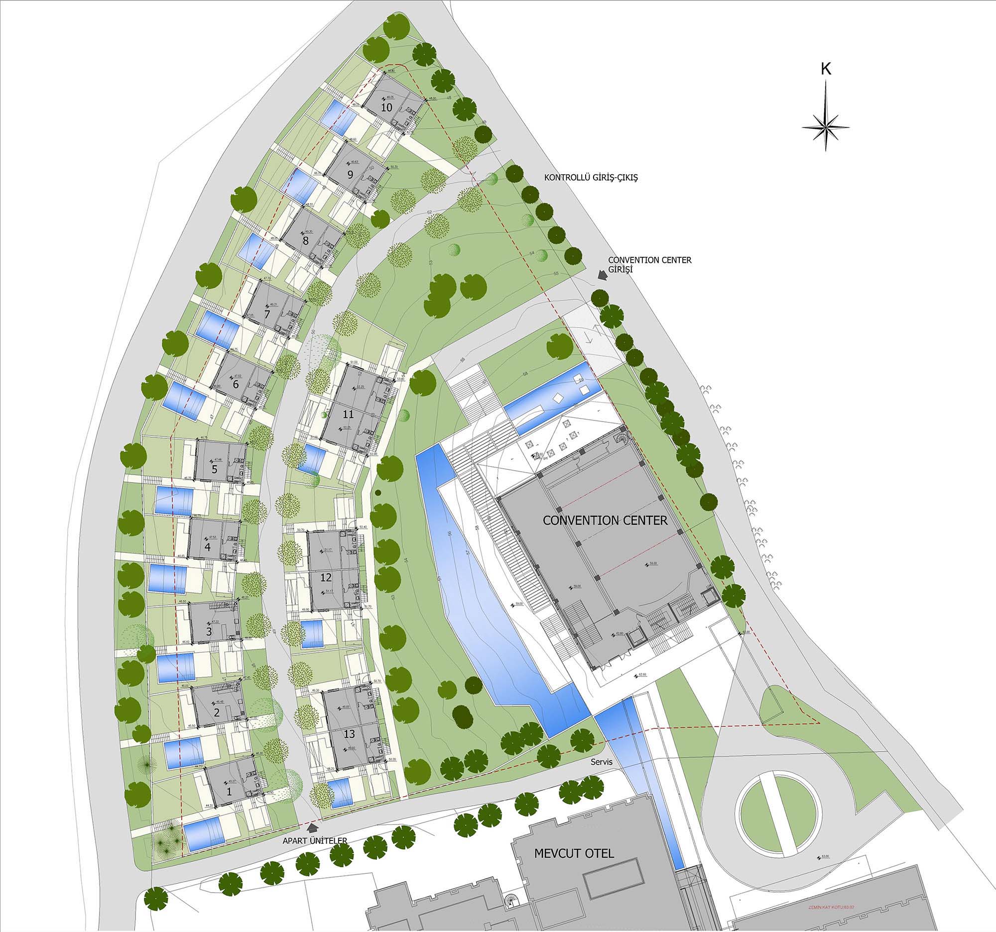
Ramada Resort Bodrum
Proje Yeri: Bodrum, Muğla
Proje Ofisi: Cemal Mutlu Mimarlık, Mozaik Mimarlık
Proje Tipi: Otel / Motel
Proje Tipi Grubu: Konaklama
Tasarım Ekibi: Cemal Mutlu, Türkiz Özbursalı
İşveren: Başaran Group
Yardımcı: Ferhat Sürek, Ecem Kocaarslan, Ali Derya Mutlu
Statik Projesi: Cem Mimarlık ve Müşavirlik
Mekanik Projesi: Cem Mimarlık ve Müşavirlik
Elektrik Projesi: Cem Mimarlık ve Müşavirlik
Proje Başlangıç Yılı: 2011
Proje Bitiş Yılı: 2012
İnşaat Başlangıç Yılı: 2012
İnşaat Bitiş Yılı: 2013
Arsa Alanı: 9,899 m2
Toplam İnşaat Alanı: 8,225 m2