2/2
Paylaş
Resmi Orjinal Boyutunda Göster
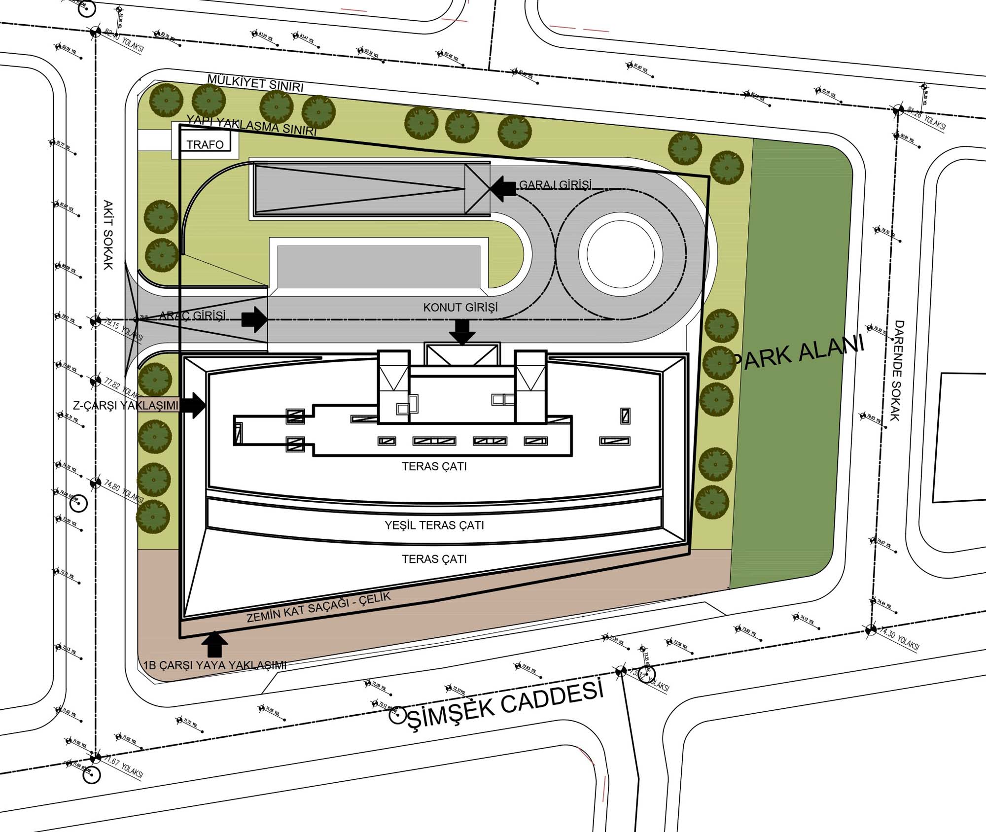
Serifali Kentsel Donusum 2
Proje Yeri: İstanbul
Proje Ofisi: Cemal Mutlu Mimarlık, Mozaik Mimarlık
Proje Tipi: Ofis
Proje Tipi Grubu: Ticari
Tasarım Ekibi: Cemal Mutlu
İşveren: Dekon İnşaat
Yardımcı: Ali Derya Mutlu, Candan Berk, Ecem Kocaarslan, Ferhat Sürek, Yağız Ezer
Ana Yüklenici: Dekon İnşaat
Statik Projesi: Onur Mühendislik
Mekanik Projesi: Mek Proje Mühendislik
Elektrik Projesi: Tepaş Mühendislik
Proje Başlangıç Yılı: 2015
Arsa Alanı: 27 000 m2
Toplam İnşaat Alanı: 46 800 m2