25/25
Paylaş
Resmi Orjinal Boyutunda Göster
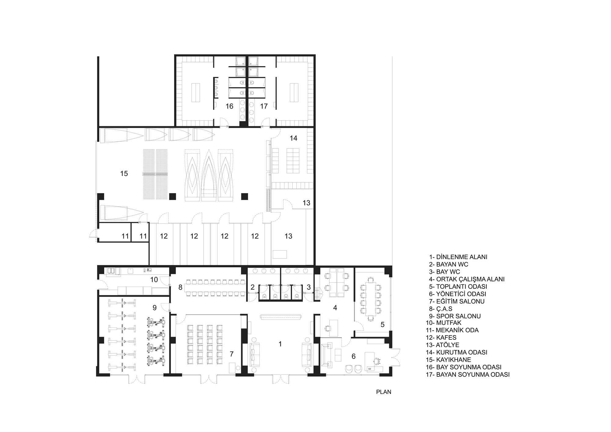
Fenerbahçe Doğuş Yelken Kulübü Faruk Ilgaz Tesisleri
Proje Yeri: Kadıköy, İstanbul
Proje Ofisi: Ekiz Tüzer Mimarlık
Proje Tipi: Spor Salonu, Diğer Eğitim Yapıları
Proje Tipi Grubu: Rekreasyon / Spor
Tasarım Ekibi: Armağan Ekiz Bayık, Başak Çolakoğlu Tüzer
İşveren: Doğuş GYI
Ana Yüklenici: Yoo Mimarlık
Mekanik Projesi: Ritmik Proje
Elektrik Projesi: Timsan Proje
Fotoğraf: Gürkan Akay
Proje Başlangıç Yılı: 2016
Proje Bitiş Yılı: 2017
İnşaat Başlangıç Yılı: 2017
İnşaat Bitiş Yılı: 2017
Toplam İnşaat Alanı: 645 m²