11/17
Paylaş
Resmi Orjinal Boyutunda Göster
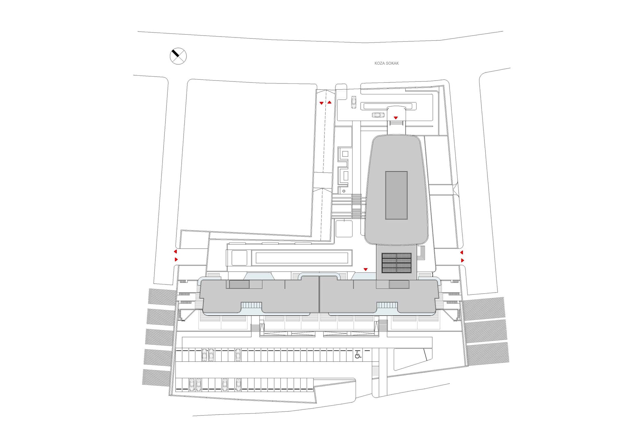
MESA Koza 66
Project Location: Ankara, Çankaya
Project Office: A Tasarım Mimarlık
Project Type: Housing Complex
Proje Tipi Grubu: Konut
Tasarım Ekibi: Ali Osman Öztürk
Employer: Mesa
Yardımcı: Eser Çengel, Canan Karakaya, Süreyya Atalay, Burcu Şenal, Güray Tekin, Harun Karabulut, Hatice Baştabak Kantar, Ceyda Er Çelik, Nil Ece Beken, Ersin Candan, Cüneyt Öztürk, Sinan Özkan, Kutlay Batur, Ece Durmaz, Ahmet Öncel
Peyzaj Mimarlığı: Dalokay Tasarım Stüdyosu (DDS)
Structural Project: Yüksek Proje
Mechanical Project: Metta Mühendislik
Electrical Project: Yurdakul Mühendislik
Fire Safety Consultant: Alara Proje Mühendislik
Photography: Fethi Mağara
Project Start Date: 2013
Project End Date: 2015
Construction Start Date: 2015
Construction End Date: 2017
Building Plot Area: 8,776 m2
Total Construction Area: 51,355 m2