12/17
Paylaş
Resmi Orjinal Boyutunda Göster
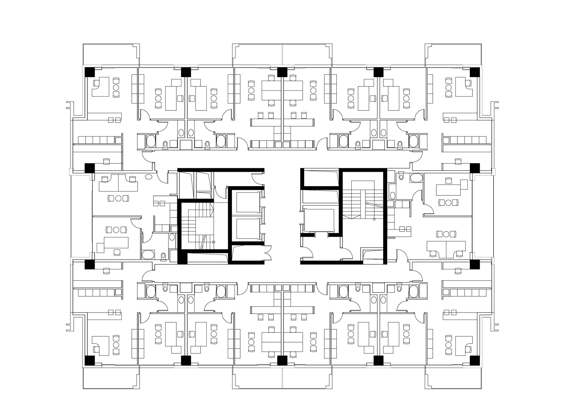
Tepe Prime
Proje Yeri: Söğütözü, Ankara
Proje Ofisi: A Tasarım Mimarlık
Proje Tipi: Ofis, Konut Sitesi / Grubu
Proje Tipi Grubu: Konut
Tasarım Ekibi: Ali Osman Öztürk
İşveren: Tepe İnşaat
Yardımcı: Eser Çengel, Nurten Asil, Filiz Önder, Süreyya Atalay, Canan Karakaya, Mehmet Güner
Ana Yüklenici: Tepe İnşaat
Peyzaj Mimarlığı: Dalokay Tasarım Stüdyosu (DDS)
Statik Projesi: Yüksek Proje İnşaat
Mekanik Projesi: GMD Mühendislik
Elektrik Projesi: Akay Mühendislik
Proje Başlangıç Yılı: 2007
Proje Bitiş Yılı: 2008
İnşaat Başlangıç Yılı: 2008
İnşaat Bitiş Yılı: 2010
Arsa Alanı: 28.227 m2
Toplam İnşaat Alanı: 92.750 m2