Pafta - 6
6/10
Paylaş
Resmi Orjinal Boyutunda Göster
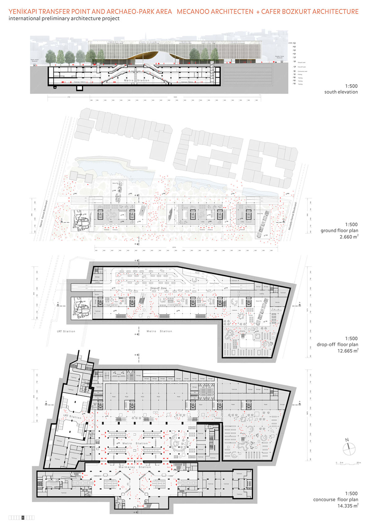
Cafer Bozkurt Mimarlık- Mecanoo
Proje Yeri: İstanbul
Proje Tipi: Kentsel Tasarım
Tasarım Ekibi: Cafer Bozkurt, Defne Bozkurt, Hasan Yirmibeşoğlu, Francesco Veenstra, Nuno Gonçalvez Fontarra, Kerem Masaracı, Francine Houben