12/12
Paylaş
Resmi Orjinal Boyutunda Göster
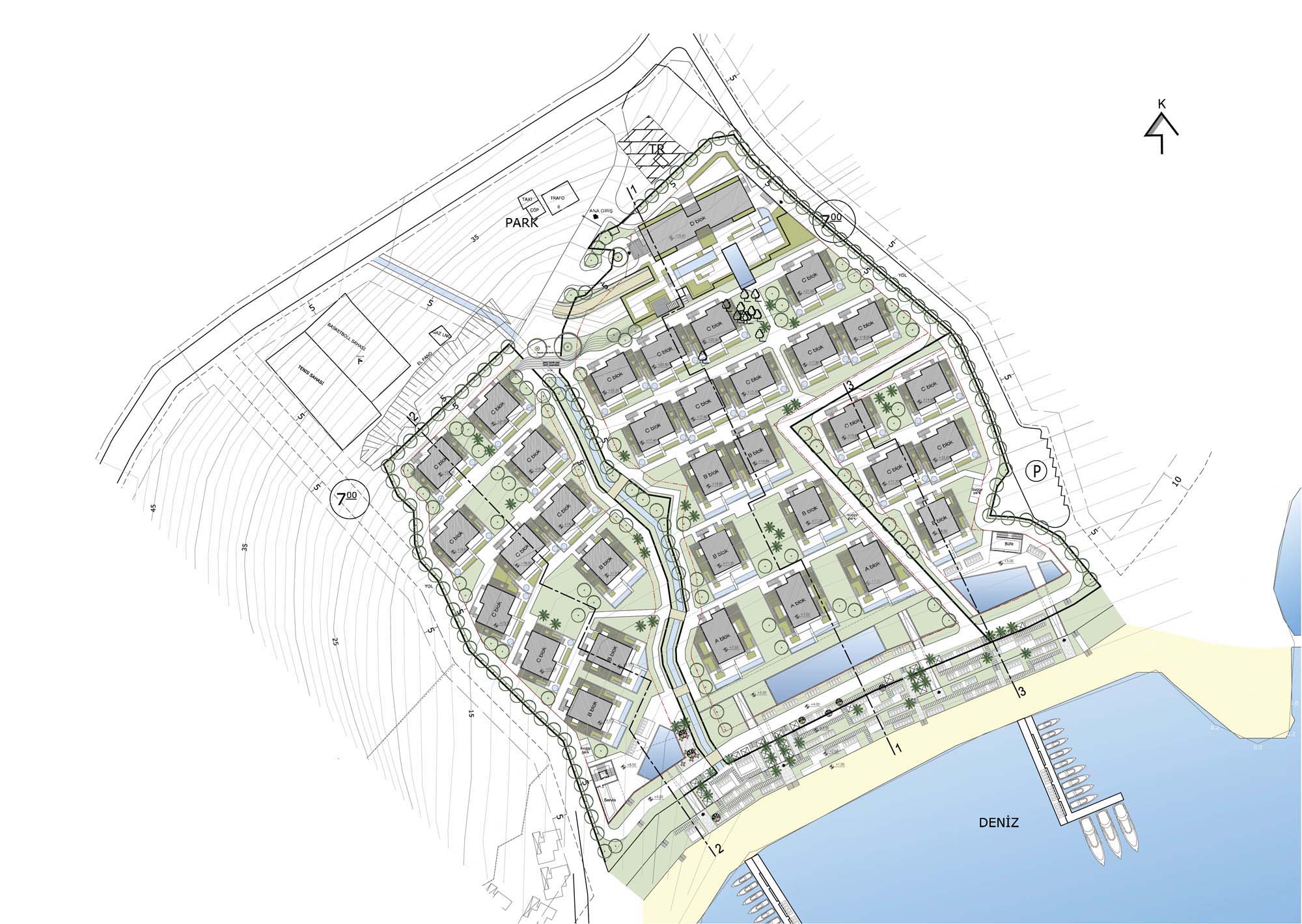
Bodrum Karma
Proje Yeri: Bodrum, Muğla
Proje Ofisi: Cemal Mutlu Mimarlık, Mozaik Mimarlık
Proje Tipi: Konut Sitesi / Grubu
Proje Tipi Grubu: Konut
Tasarım Ekibi: Cemal Mutlu, Ecem Kocaarslan
İşveren: DENİZ GYO
Yardımcı: Ferhat Sürek, Yağız Ezer
Peyzaj Mimarlığı: MDesign
Proje Başlangıç Yılı: 2017
Arsa Alanı: 28 438 m2,
Toplam İnşaat Alanı: , 25 000 m2