Pafta - 6
6/10
Paylaş
Resmi Orjinal Boyutunda Göster
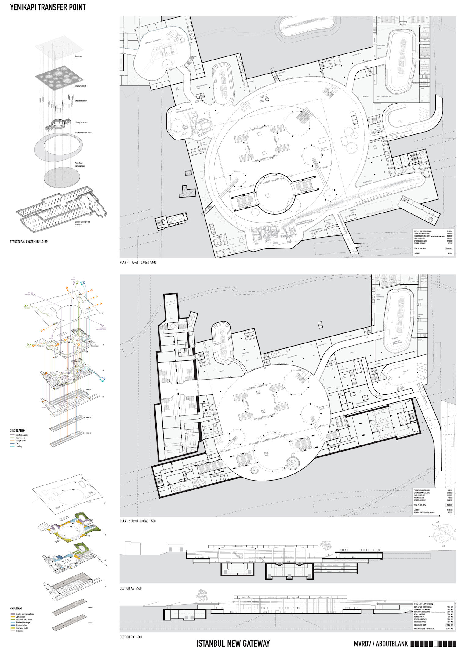
MVRDV - ABOUTBLANK
Proje Yeri: İstanbul
Proje Ofisi: MVRDV, Aboutblank
Proje Tipi: Kentsel Tasarım
Tasarım Ekibi: David Steegman, Chiara Quinzii, Ozan Özdilek, Erhan Vural, Nathalie de Vries, Fokke Moerel, Aser Ortega Gimenez, Daehee Suk, YiYi Yang, Hasan Gümüşsoy, Gökhan Kodalak