20/20
Paylaş
Resmi Orjinal Boyutunda Göster
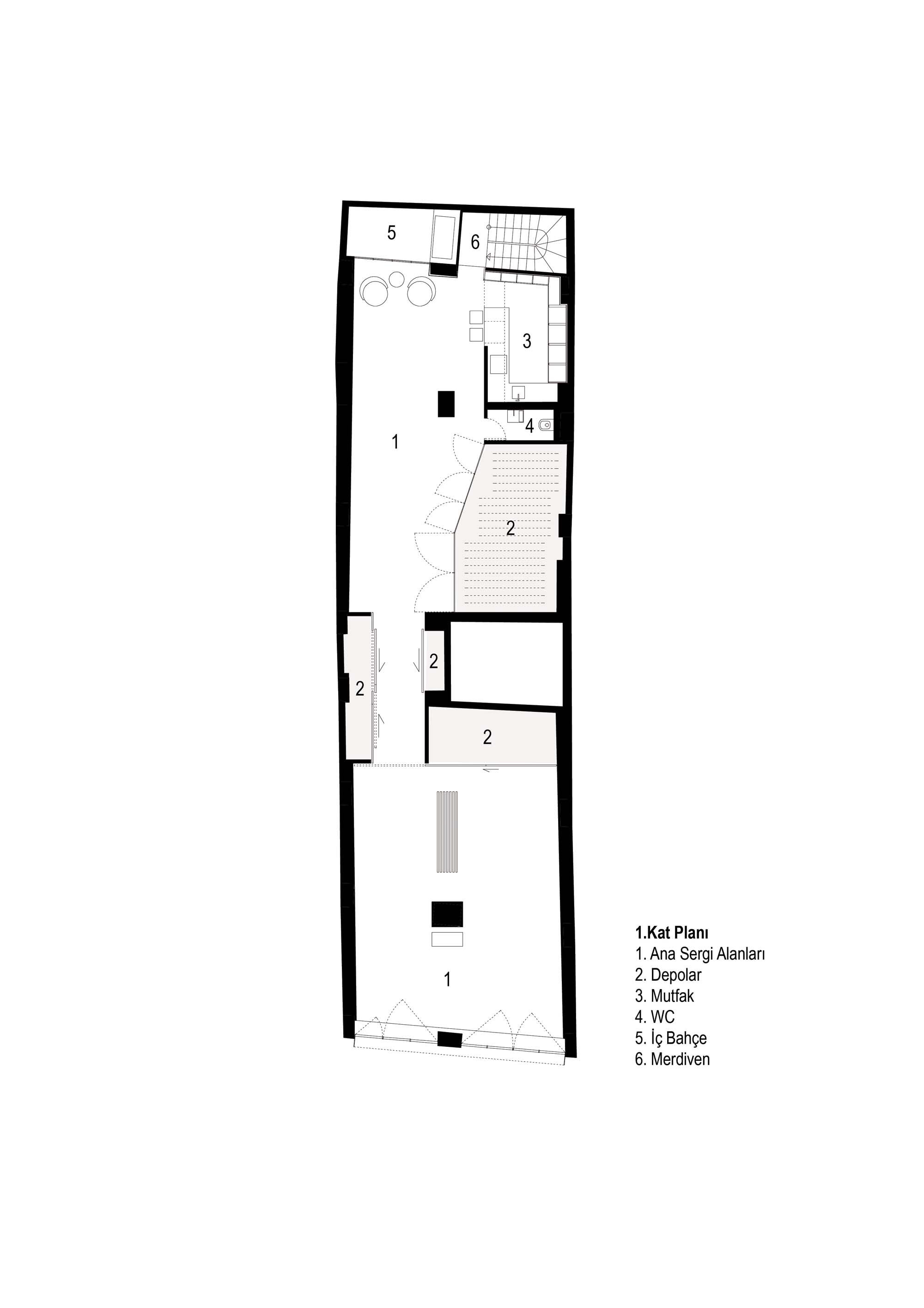
ADAS Galeri
Project Location: Kağıthane, İstanbul
Project Office: Acararch
Project Type: Exhibition Hall / Gallery
Proje Tipi Grubu: Kültür
Tasarım Ekibi: Emre Açar, Çağrı Helvacıoğlu Aydoğu
Employer: Ömer Özyürek, Ayşegül Dalokay Özyürek
Ana Yüklenici: Acararch
Lighting Project: Mustafa Akkaya
Mechanical Project: Yıldırım Soğutma
Electrical Project: RTK Mühendislik
Photography: Ayça Taylan
Construction Site Manager: Cemal Lüküs
Project Start Date: 2016
Project End Date: 2016
Construction Start Date: 2016
Construction End Date: 2017
Building Plot Area: 180 m2
Total Construction Area: 340 m²