27/30
Paylaş
Resmi Orjinal Boyutunda Göster
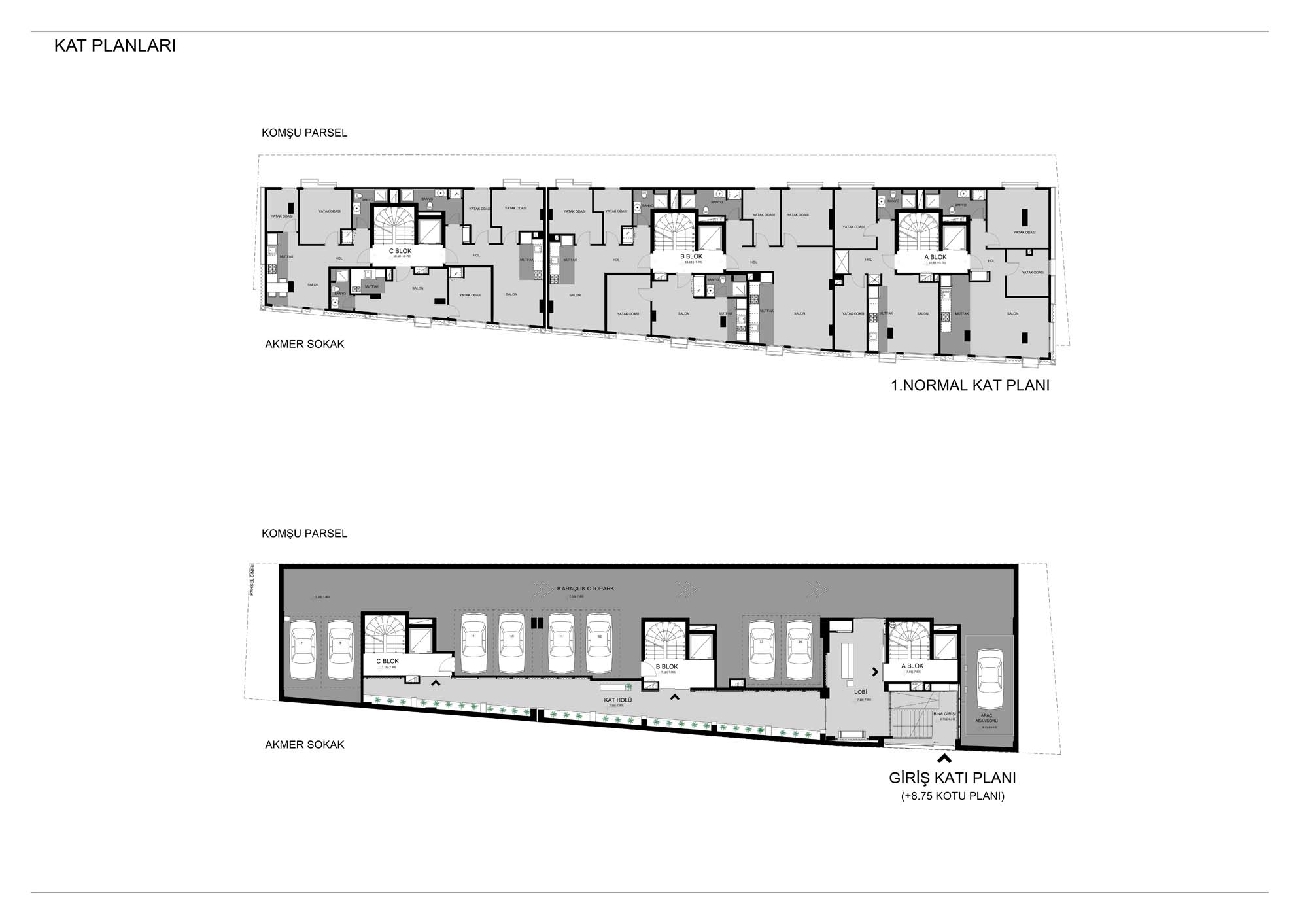
Aca Suite
Proje Yeri: İstanbul, Kağıthane
Proje Ofisi: 34 Architects
Proje Tipi: Apartman
Proje Tipi Grubu: Konut
Tasarım Ekibi: Cenk Saraçoğlu
İşveren: Büşra Çevik Tiz, Aca Yapı ve İnşaat
Yardımcı: Beyza Eroğlu, İrem Nur Tat
Ana Yüklenici: Protim Proje ve Teknoloji
Mimari Mesleki Kontrollük: Cenk Saraçoğlu
Proje Başlangıç Yılı: 2014
Proje Bitiş Yılı: 2016
İnşaat Başlangıç Yılı: 2016
İnşaat Bitiş Yılı: 2017
Arsa Alanı: 553 m2
Toplam İnşaat Alanı: 3,592 m2