15/23
Paylaş
Resmi Orjinal Boyutunda Göster
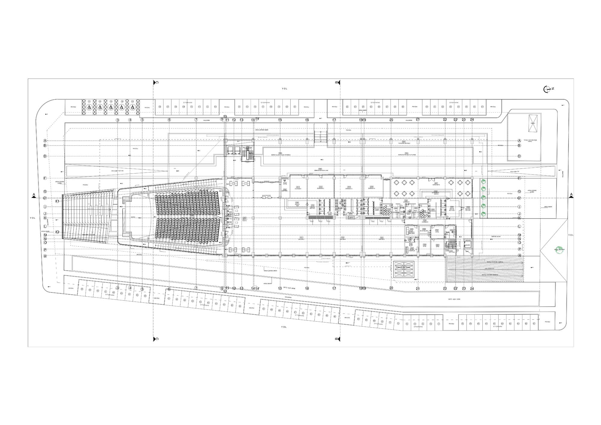
Konyaaltı Belediyesi Nazım Hikmet Fuar ve Kongre Merkezi
Project Location: Antalya, Konyaaltı
Project Office: Altındal Mimarlık, AC Bıçaklı Mimarlık
Project Type: Convention Center
Proje Tipi Grubu: Kültür
Tasarım Ekibi: Şevket Altındal, Ahmet Bıçaklı, Can Cahit Bıçaklı
Employer: Konyaaltı Belediyesi
Ana Yüklenici: Simya İnşaat
Interior Architecture: Tuba Soner
Construction Drawings: AC Bıçaklı Mimarlık
Structural Project: Akıncı Mühendislik
Mechanical Project: TSO Mühendislik, Taner Tazegül
Electrical Project: Yüksel Mühendislik
Plumbing Project: TSO Mühendislik, Taner Tazegül
Çelik Projesi: Akıncı Mühendislik
Project Start Date: 2015
Project End Date: 2016
Construction Start Date: 2016
Construction End Date: 2017
Building Plot Area: 7,824 m2​
Total Construction Area: 13,200 m2