11/15
Paylaş
Resmi Orjinal Boyutunda Göster
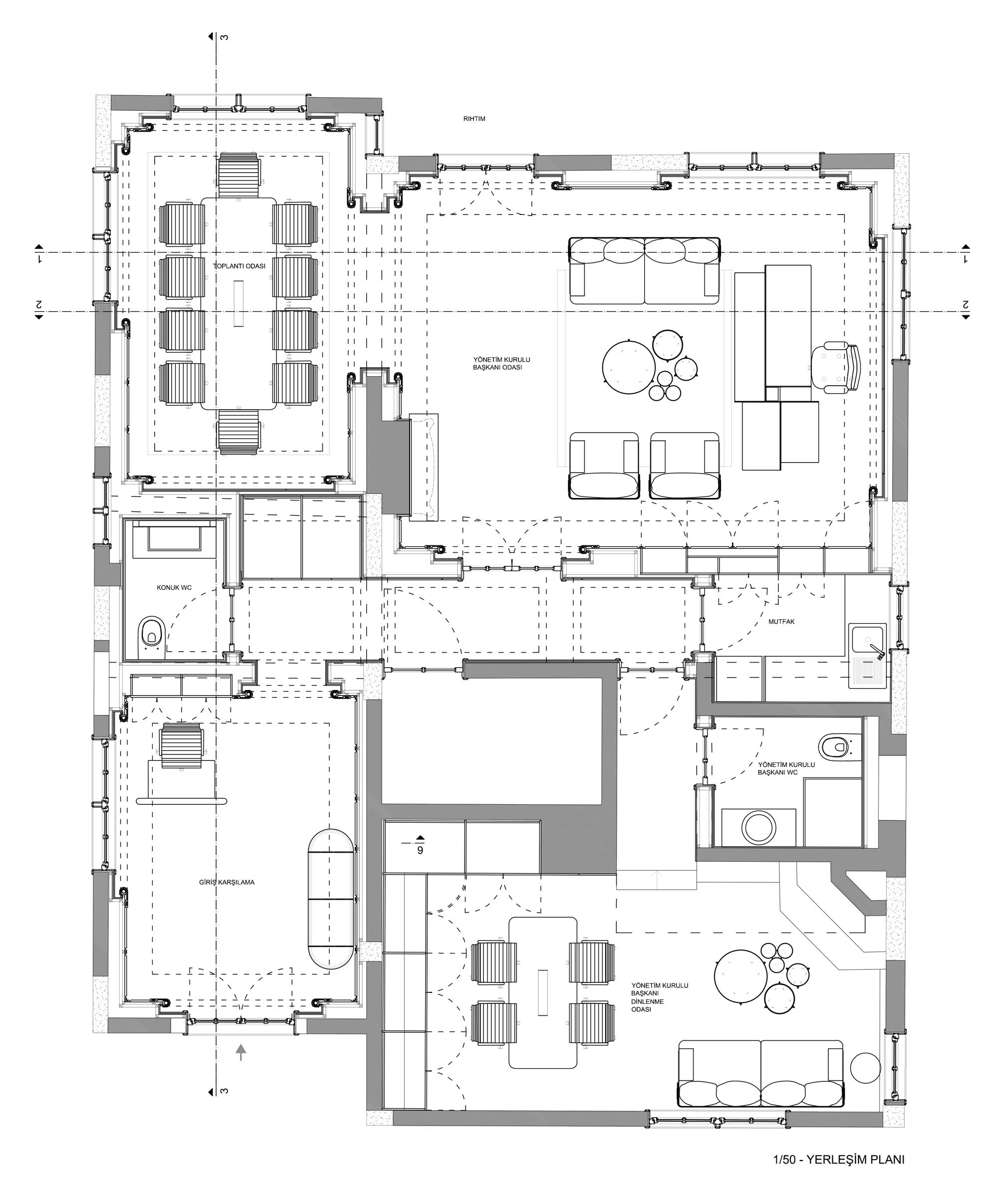
Baha Bey Yalısı Akçelik Ofisi
Project Location: İstanbul, Üsküdar
Project Office: Wangan
Project Type: Offices
Proje Tipi Grubu: Commercial
Tasarım Ekibi: Kerem Özerler, Kutay Yorulmaz, Mert Can Uzyıldırım
Employer: Akçelik
Ana Yüklenici: Wangan
Photography: Ömer Uzun
Construction Site Manager: Mert Can Uzyıldırım
Project Start Date: 2017
Project End Date: 2017
Construction Start Date: 2017
Construction End Date: 2017
Building Plot Area: 560 m²
Total Construction Area: 140 m2