12/13
Paylaş
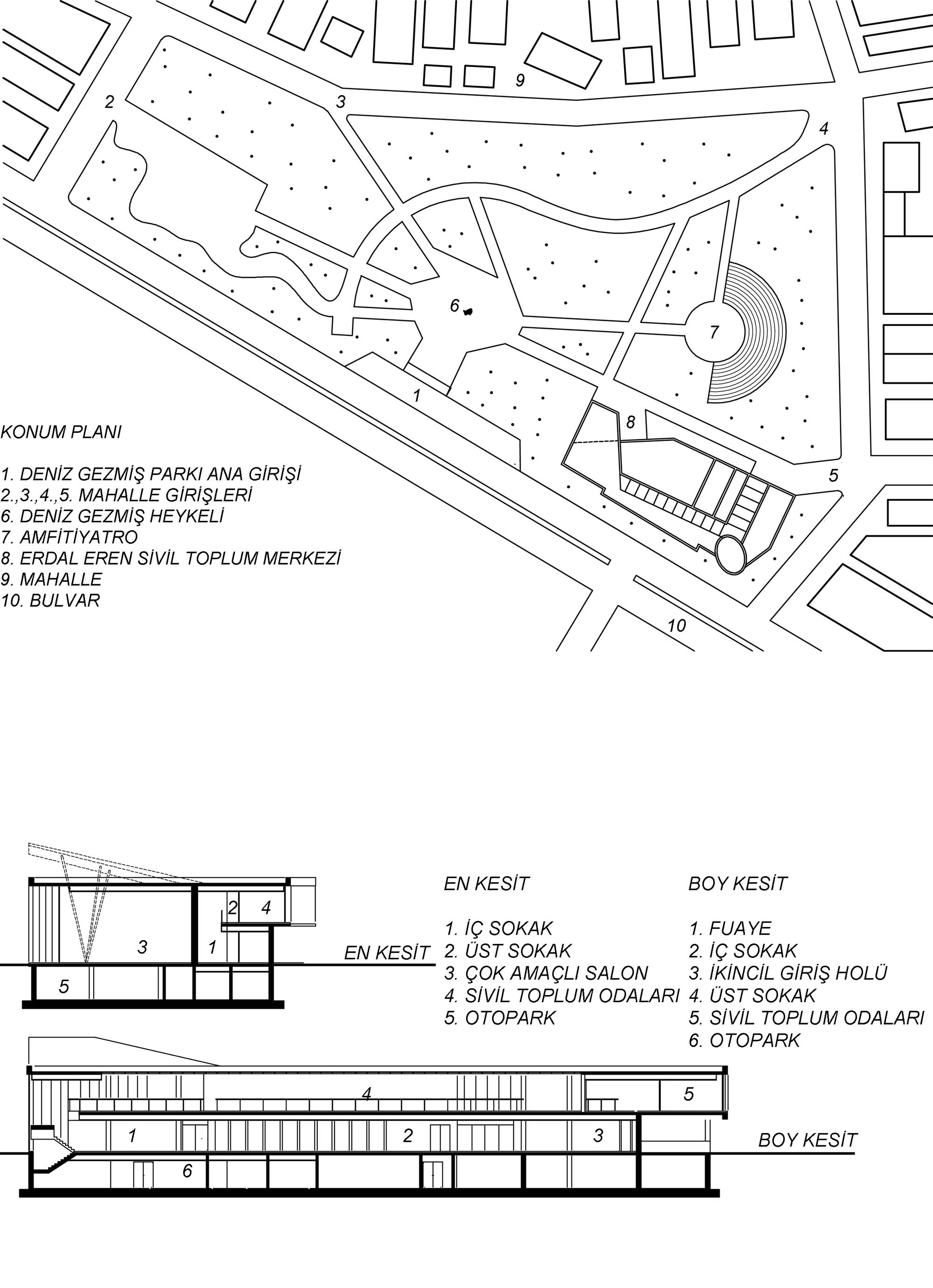
Resmi Orjinal Boyutunda Göster
Erdal Eren Sivil Toplum Merkezi
Proje Yeri: Ataşehir, İstanbul
Proje Ofisi: SE Mimarlık, Etüd Mimarlık
Proje Tipi: Sosyal Tesis
Proje Tipi Grubu: Kamu
Tasarım Ekibi: Selim Velioğlu, Can Özsavaşçı, Erce Funda, Ersen Gömleksiz, Orkun Özüer
İşveren: Ataşehir Belediyesi
Yardımcı: Oğuz Tuncer, Zeynep Serbest
Ana Yüklenici: Beymak
Proje Yöneticisi: Ersen Gömleksiz
Konsept Tasarımı: SE Mimarlık, Etüd Mimarlık
Uygulama Projesi: SE Mimarlık
Aydınlatma Projesi: Atlantis
Statik Projesi: Teknik Yapı Proje
Mekanik Projesi: Beta Teknik
Elektrik Projesi: Atlantis
Tesisat Projesi: Atlantis
Çelik Projesi: Teknik Yapı Proje
Altyapı Projesi: Beta Teknik
Yangın Tahliye Projesi: Beta Teknik
Fotoğraf: Orkun Özüer
Mimari Mesleki Kontrollük: Ataşehir Belediyesi
Şantiye Yöneticisi: Yaşar Kaya
Proje Başlangıç Yılı: 2014
Proje Bitiş Yılı: 2015
İnşaat Başlangıç Yılı: 2015
İnşaat Bitiş Yılı: 2017
Arsa Alanı: 24.500m²
Toplam İnşaat Alanı: 2,970m²