14/16
Paylaş
Resmi Orjinal Boyutunda Göster
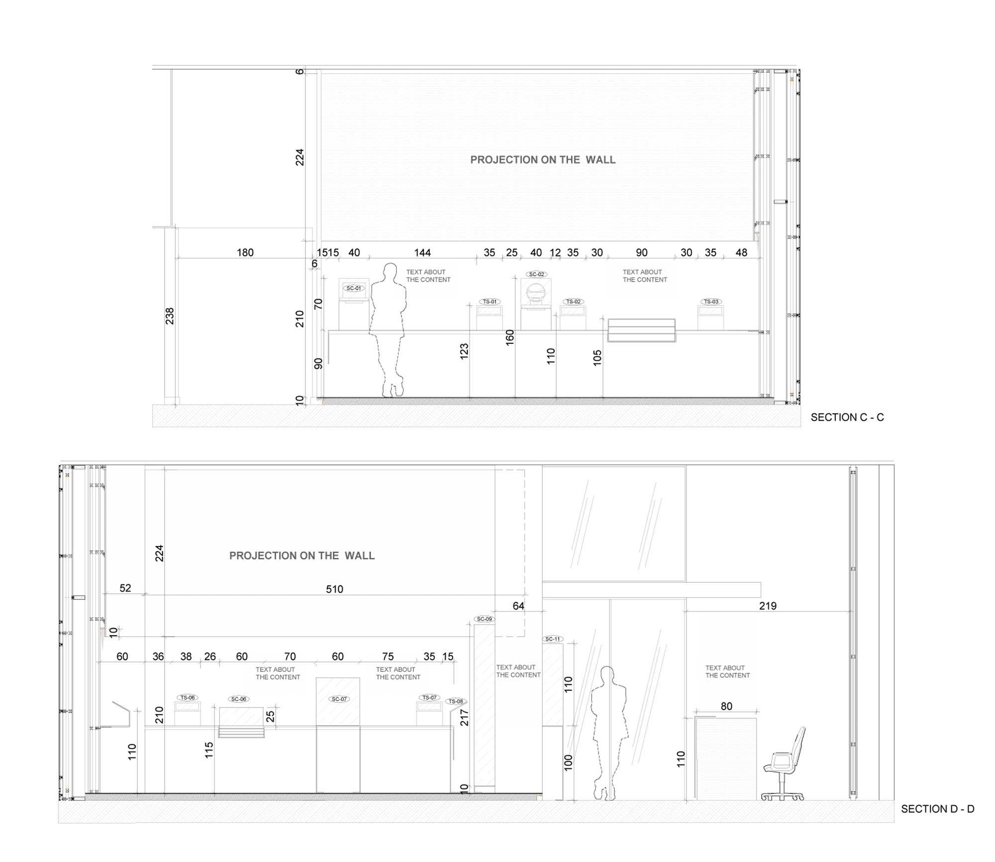
Avrasya Tüneli Müzesi
Project Office: AVCI Architects
Project Type: Exhibition Hall / Gallery
Proje Tipi Grubu: Kültür
Tasarım Ekibi: Sanja Jurca Avcı, Selçuk Avcı, Ahmet Kapıcıoğlu, Tolgahan Akbulut
Employer: Avrasya Tüneli İşletme İnşaat ve Yatırım A.Ş. (ATAŞ)
Consultant: Şener Çardak
Yardımcı: Öncü Gönenç, Dilay Letafet Ok, Ulaş Erboylu, H. Melih Mumcu, Aşkın Kaan Kaptan, Ceren Alaca Bayındır, Dominick Donghee Kim, Ahmet Ergenç, Innes Welbourne
Ana Yüklenici: SERGIKUR, Şener Çardak
Projcet Manager: Selçuk Avcı, Koray Tokdemir, Arda Can Buze
Project Start Date: 2016
Project End Date: 2017
Construction Start Date: 2017
Construction End Date: 2017
Total Construction Area: 80 m²