14/16
Paylaş
Resmi Orjinal Boyutunda Göster
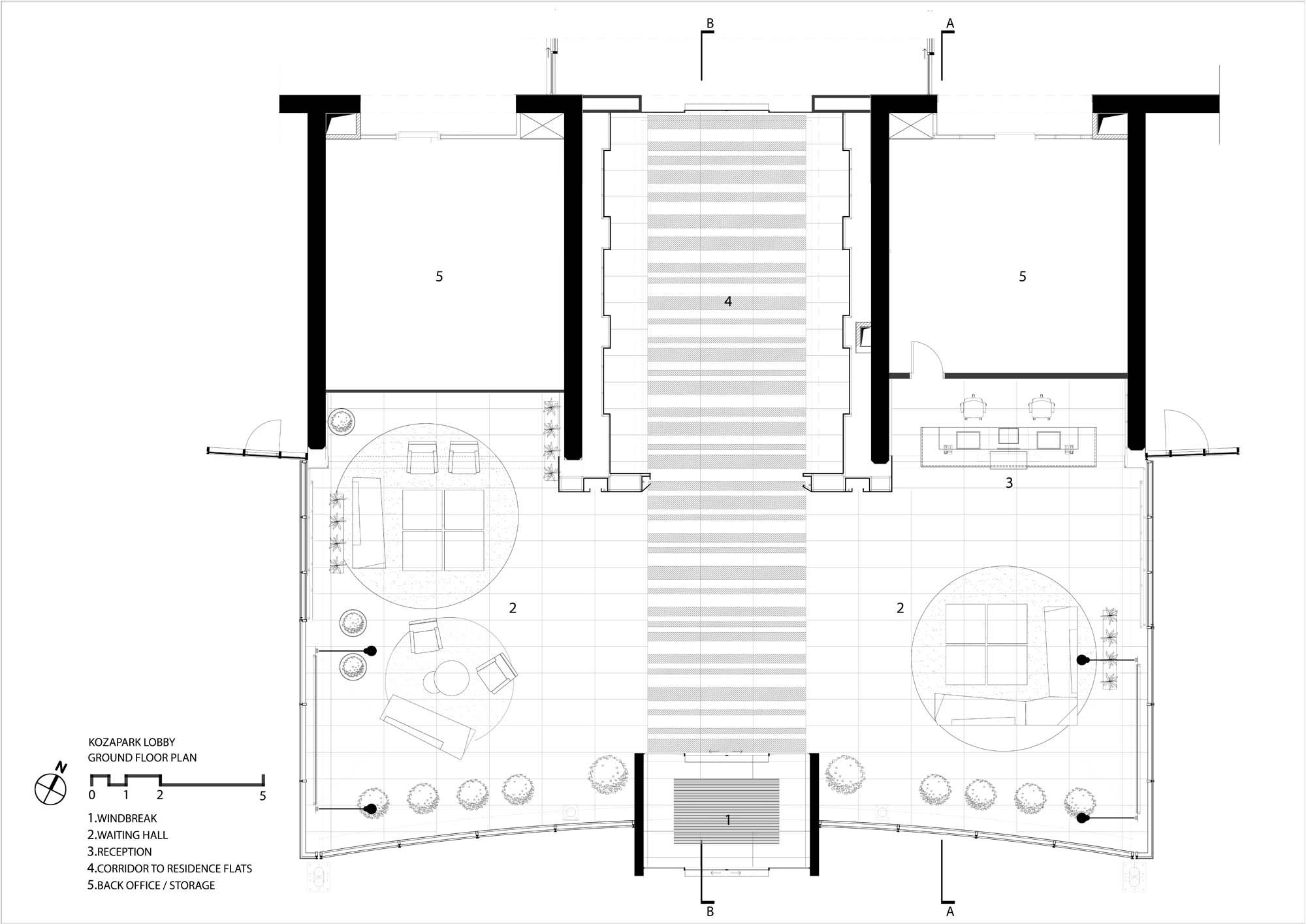
Koza Park İç Mekan Projesi
Proje Yeri: Esenyurt, İstanbul
Proje Ofisi: Öney Mimarlık
Proje Tipi: Konut Sitesi / Grubu
Proje Tipi Grubu: Konut
Tasarım Ekibi: Mustafa Öney, Kerem Gürbüzer, Hande Öney, Gözde Gürbüzer
İşveren: Kerem Gürbüzer, Garanti Koza
Ana Yüklenici: Öney Mimarlık
Fotoğraf: Mustafa Nurdoğdu
Şantiye Yöneticisi: Sami Ağır
Proje Başlangıç Yılı: 2016
Proje Bitiş Yılı: 2017
İnşaat Başlangıç Yılı: 2016
İnşaat Bitiş Yılı: 2017
Arsa Alanı: 3,800 m²
Toplam İnşaat Alanı: 40,218 m2