17/19
Paylaş
Resmi Orjinal Boyutunda Göster
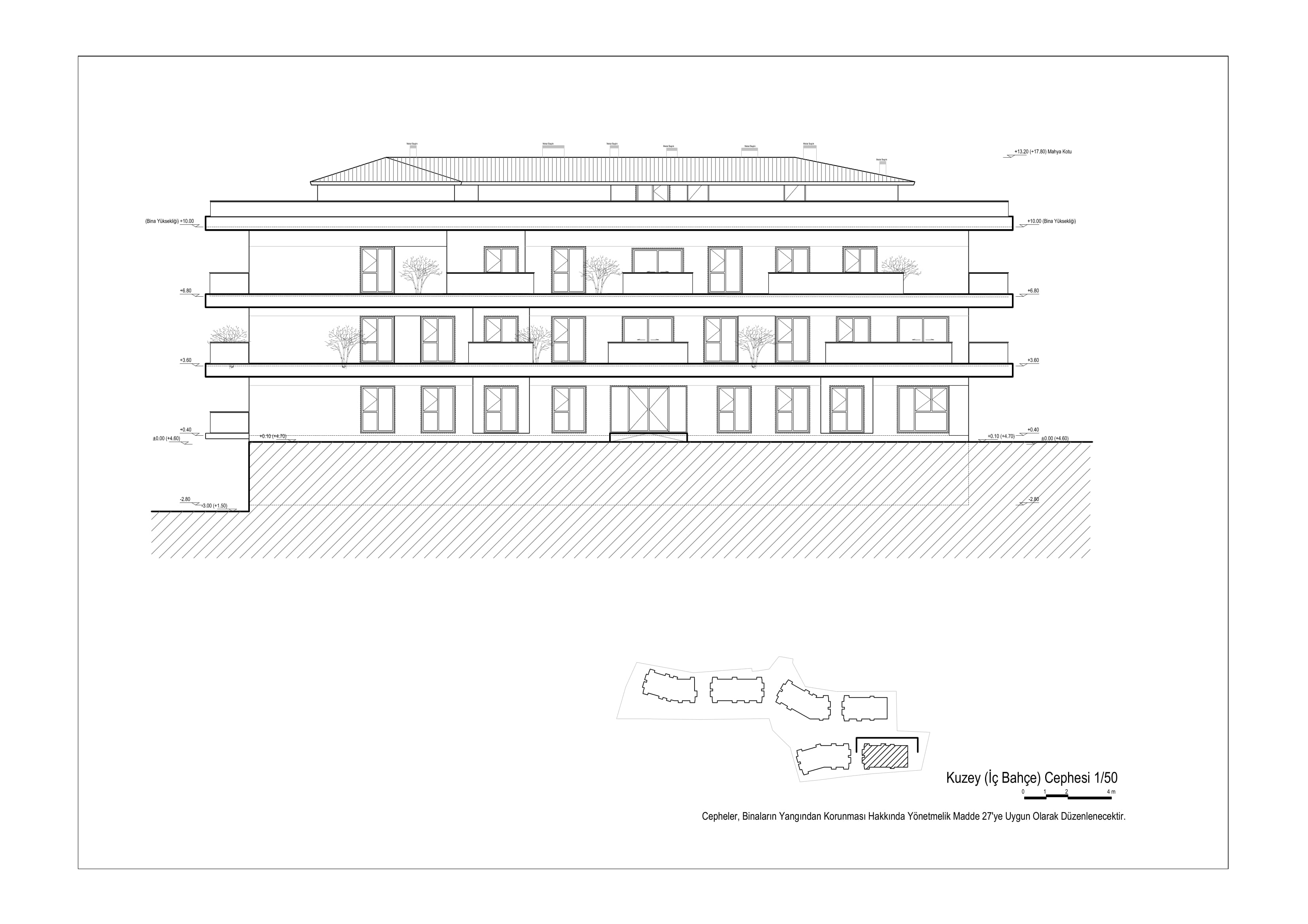
Casa Marin Suites
Proje Yeri: Urla, İzmir
Proje Ofisi: Not Mimarlık
Proje Tipi: Konut Sitesi / Grubu
Proje Tipi Grubu: Konut
Tasarım Ekibi: Serdar Uslubaş, Merih Feza Yıldırım, Duygu Görgün Şenoğlu, Talat Çelebi, Gülbiye Hacıoğlu, Ceren Tuncer, Sena Neşem Uysal
İşveren: Eruz Yapı
Proje Başlangıç Yılı: 2016
Toplam İnşaat Alanı: 24,200 m2