25/25
Paylaş
Resmi Orjinal Boyutunda Göster
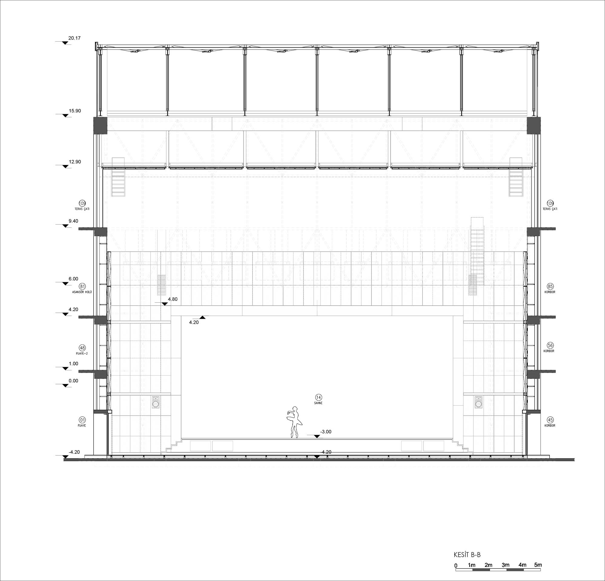
Boğaziçi Kültür ve Sanat Merkezi Salonu İç Mekan Tasarımı
Project Location: İstanbul, Sarıyer
Project Office: Desmus Mimarlık
Project Type: Cultural Center
Proje Tipi Grubu: Kültür
Tasarım Ekibi: George Andreou, Ece Gezer, Pelin Sürmeli, Pınar Yağdı
Employer: Sarıyer Belediyesi
Çelik Projesi: TAN Çelik
Fire Safety Consultant: YAN-MA-DAN
Photography: Serhat Kaya
Project Start Date: 2016
Project End Date: 2016
Construction Start Date: 2016
Construction End Date: 2017
Total Construction Area: 1,500 m2