21/23
Paylaş
Resmi Orjinal Boyutunda Göster
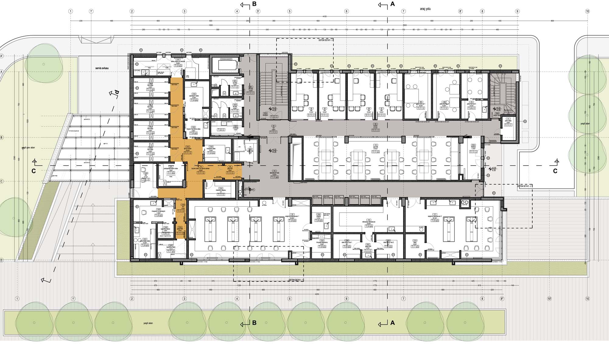
Aysel Sabuncu Beyin Araştırmaları Merkezi
Proje Yeri: Ankara, Çankaya
Proje Ofisi: Bütüner Mimarlık
Proje Tipi: Ar-Ge Binası
Proje Tipi Grubu: Sağlık
Tasarım Ekibi: Hüseyin Bütüner, Işıl Sencar Ertosun
İşveren: Bilkent Üniversitesi
Yardımcı: Cem Korkmaz, Süleyman Sünbüloğlu, Burcu Bilgenoğlu Umur
Ana Yüklenici: BİLBAK A.Ş.
Peyzaj Mimarlığı: Bütüner Mimarlık, Tülin Göçer Munzur
Statik Projesi: Kınacı Mühendislik, Mehmet Zafer Kınacı
Mekanik Projesi: Metta, Meriç Sapçı
Elektrik Projesi: Yurdakul Mühendislik, Özgür Ulupınar
Tesisat Projesi: Metta, Meriç Sapçı
Yangın Tahliye Projesi: ORGA Mühendislik
Yangın Güvenlik Danışmanı: ORGA Mühendislik
Fotoğraf: KoKa Photography, Koray Kalay
Mimari Mesleki Kontrollük: HaRing 3D Rendering, Bütüner Mimarlık
Proje Başlangıç Yılı: 2013
Proje Bitiş Yılı: 2015
İnşaat Başlangıç Yılı: 2015
İnşaat Bitiş Yılı: 2017
Arsa Alanı: 25,000 m2
Toplam İnşaat Alanı: 3,100 m2