9/12
Paylaş
Resmi Orjinal Boyutunda Göster
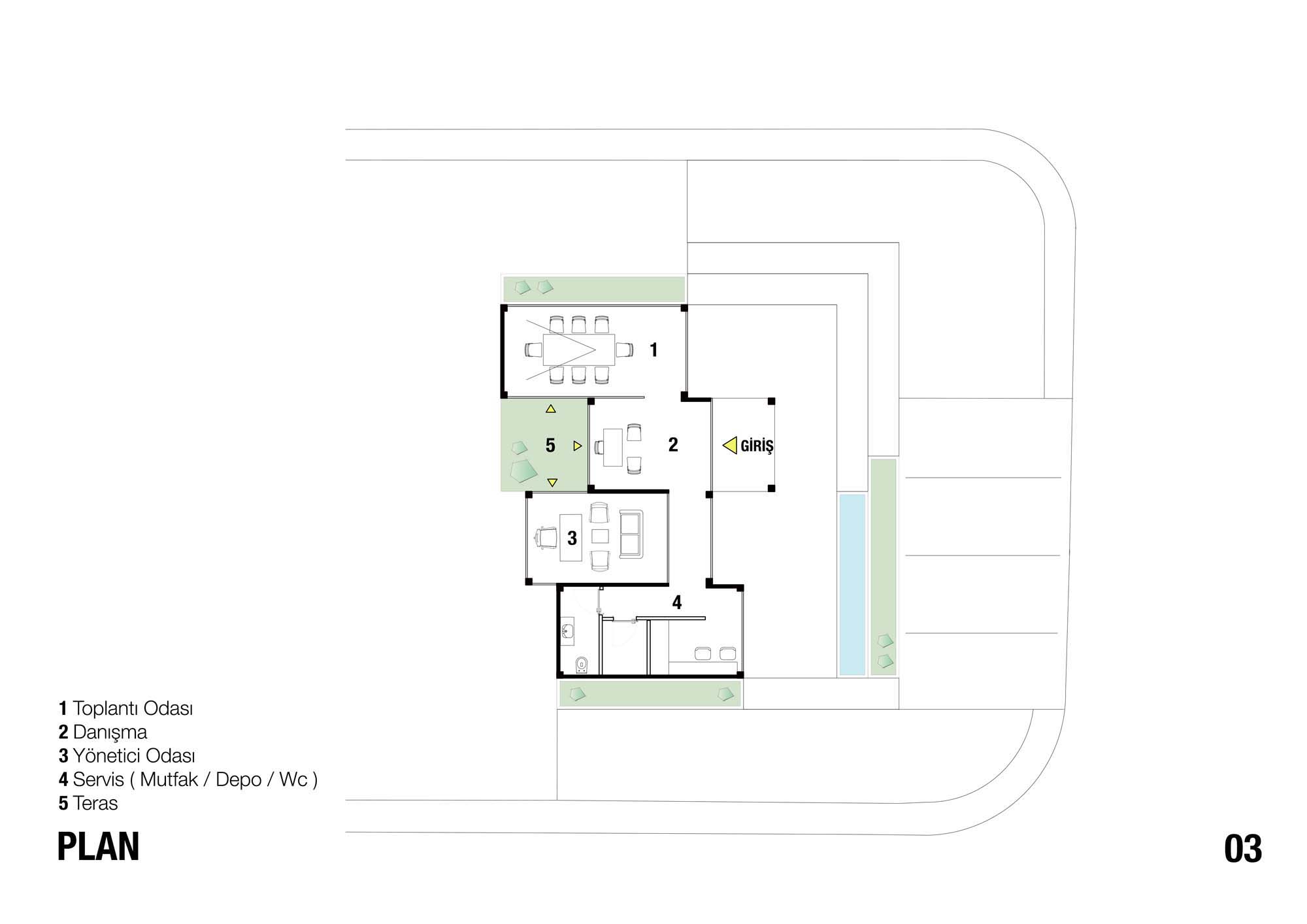
Serdivan M Ofis
Proje Yeri: Adapazarı (Sakarya), Serdivan
Proje Ofisi: the | work
Proje Tipi: Ofis
Proje Tipi Grubu: Ticari
Tasarım Ekibi: Büşra Koçak, Berk Arinç
İşveren: Remley İnşaat
Ana Yüklenici: Remley İnşaat
Proje Başlangıç Yılı: 2017
Proje Bitiş Yılı: 2017
İnşaat Başlangıç Yılı: 2017
İnşaat Bitiş Yılı: 2017
Arsa Alanı: 300 m²
Toplam İnşaat Alanı: 72 m2