33/38
Paylaş
Resmi Orjinal Boyutunda Göster
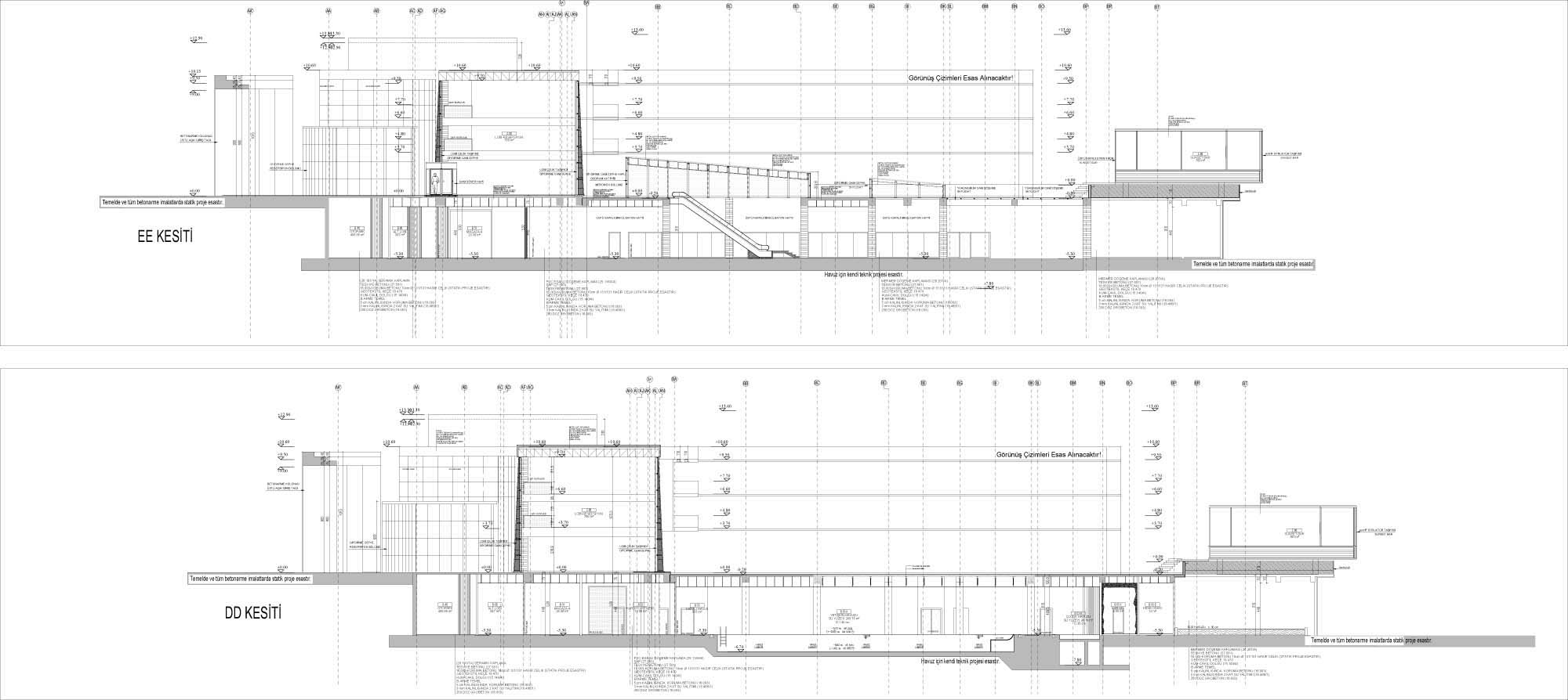
Alaçatı Zigana Resort Otel
Project Location: Çeşme, İzmir
Project Office: OCADO Mimarlık
Project Type: Hotel / Motel
Proje Tipi Grubu: Konaklama
Tasarım Ekibi: Öznur Çakır
Employer: TEK-ART Holding
Yardımcı: Hale Uzun, Erhan Arar
Ana Yüklenici: TEK-ART Holding
Peyzaj Mimarlığı: E2 Peyzaj
Interior Architecture: Füme Design, OCADO Mimarlık
Projcet Manager: Öznur Çakır
Structural Project: Genseres Mühendislik
Mechanical Project: Karma Mühendislik
Electrical Project: Fluks Enerji
Plumbing Project: Karma Mühendislik
Çelik Projesi: Genseres Mühendislik
Project Start Date: 2015
Project End Date: 2015
Construction Start Date: 2016
Construction End Date: 2017
Building Plot Area: 80,000 m2
Total Construction Area: 35,000 m²