22/23
Paylaş
Resmi Orjinal Boyutunda Göster
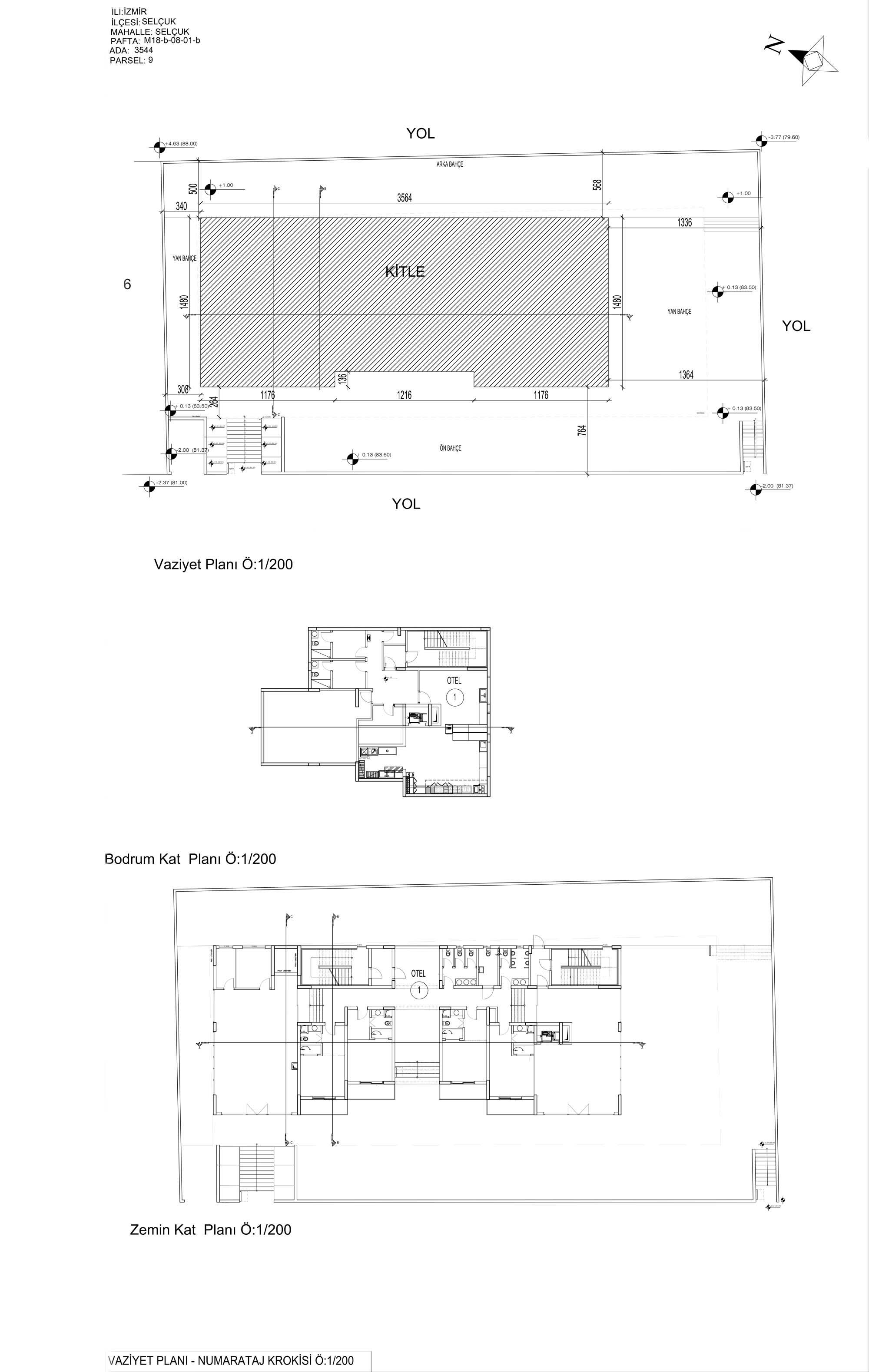
Nea Efessos Butik Otel
Proje Yeri: Selçuk, İzmir
Proje Ofisi: Esra Acar Mimarlık
Proje Tipi: Otel / Motel
Proje Tipi Grubu: Konaklama
Tasarım Ekibi: Esra Acar Topuzoğlu
İşveren: Gökhan Sengel, Sengel Group
Danışman: Metin Çakmakçı, Nursel Çakmakçı
Ana Yüklenici: Engin İnşaat
Proje Yöneticisi: Gökhan Sengel, Reyyan Botanik Peyzaj
Statik Projesi: Nil Alev Ertan
Mekanik Projesi: Projeısı, Necdet Tunalı
Elektrik Projesi: Işık Elektrik, Durmuş Ali Sertoğlu
Tesisat Projesi: Projeısı, Necdet Tunalı
Şantiye Yöneticisi: Esra Acar Topuzoğlu
Proje Başlangıç Yılı: 2014
Proje Bitiş Yılı: 2015
İnşaat Başlangıç Yılı: 2015
İnşaat Bitiş Yılı: 2017
Arsa Alanı: 1,459 m2
Toplam İnşaat Alanı: 1,314 m2